Bauprojekte

Aktuelle Bauprojekte

Im Frühjahr 2021 wurde ein europaweites VgV-verfahren für die Planer durchgeführt. Auf dem innerstädtischen Grundstück wurde von den Architekten eine Machbarkeitsstudie für eine Kita mit 5 Gruppen erstellt, die die Lage der Baukörper und der PKW-Stellplätze untersuchte. Die Eingliederung zu den bestehenden Nachbargebäuden wurde unter städtebaulicher Betrachtung mit untersucht. Es ist ein zweigeschossiges Gebäude mit Satteldach mit darunterliegendem Untergeschoss geplant.
Im BPA am 05.10.2021 wurde auf Basis der Vorentwurfsplanung aufgrund der Machbarkeitsstudie der Bau der Kindertagesstätte zuzüglich einer Tiefgarage beschlossen. Die Tiefgarage bietet den Vorteil, dass die Freiflächen für die Kinder genutzt werden können ohne Störung durch Autoverkehr. Die Aufwertung des innerstädtischen Grünbereichs ist durch Wegfall von oberirdischen Stellplätzen ein positiver Aspekt. Das Raumprogramm sieht eine KiTa für fünf Gruppen mit den erforderlichen Nebenräumen, einen Mehrzweckraum, sowie einen Speisesaal mit angegliederter Aufwärmküche vor. Der Kitabereich ist im Erd-und Obergeschoss vorgesehen und intern mit einer Treppe und Aufzug verbunden.
Die Vorentwurfsplanung soll bis Frühjahr 2022 erstellt werden, die als Grundlage für die weitere Entwurfsplanung dient. Nach Freigabe der Entwurfsplanung und der Kostenberechnung durch den BPA können der Bauantrag und die Förderanträge gestellt werden. Die weiteren Leistungsphasen insbesondere die Werk- und Detailplanung werden im Anschluss beauftragt und eine europaweite Ausschreibung durchgeführt. Geplanter Baubeginn ist voraussichtlich Anfang 2023.

Aufgrund stark gestiegener Schülerzahlen muss die 1959 gebaute Grundschule Dachau Ost erweitert werden. Die bestehenden Räumlichkeiten sind für die zukünftigen Anforderungen von insgesamt 24 Klassen zuzüglich Gruppen- und Differenzierungsräumen und Räumen für Musikunterricht und Instrumenten-unterbringung nicht ausreichend. Aufgrund der schwierigen Gebäudestruktur des Bestandes wurden mehrere Varianten von Baukörpern für die Erweiterung untersucht. Der Vorentwurf wurde nach den Nutzerwünschen eines Lernhauskonzeptes, den Anforderungen aus dem Bebauungsplan und der Förderfähigkeit erstellt. Für den geplanten Neubau werden die zwei südlichen Gebäudeflügel abgerissen. An deren Stelle entsteht ein viergeschossiger Neubau mit Innenhof, mit einer zukunftsorientieren Grundrisslösung um das Lernhauskonzept zu ermöglichen.
Im nördlichen Teil wird der Bestand wird im Erdgeschoss umgebaut, so dass ein sechsgruppiger Hortbereich mit den erforderlichen Nebenräumen entsteht. Zwischen diesen zwei Bestandflügen wird ein eingeschossiger Neubau erstellt, der als Ringschluss den Hort als gemeinsamen Bereich verbindet und die erforderlichen Flächen ausweist. Im Frühjahr 2020 wurde mit der Wiederaufnahme der Planung begonnen. Aufgrund des demografischen Berichts im Sommer 2020 wurde das Raumprogramm vergrößert um den zukünftigen Bedarf der nächsten Jahre und Jahrzehntezehnte sicherzustellen. Im Herbst 2022 sollen provisorischen Container aufgestellt werden, um hier für die Übergangsphase ab Abbruch bis Fertigstellung den Schulbetrieb dort zu ermöglichen.
Das Grundmuster des Lernhauses ist räumlich als „Cluster“ organisiert: Um eine gemeinsame „Mitte sind die Klassen- und Gruppenräume angesiedelt. Zugeordnet sind Teamzimmer, Lagerraum und Sanitärbereich mit eigener Eingangsbereich. Im Erdgeschoss des Erweiterungsbaus ist auch die Verwaltung der Schule, die Aula, eine Fachklasse Musik, ein flexibel nutzbarer Mehrzweckraum und die Mensa mit Küche angesiedelt. Die Mensa wird sowohl von der Schule als auch vom Hort genutzt. Der 6 – gruppige Kinderhort wird im Erdgeschoß des bestehenden Schulgebäudes angeordnet. Nord – und Südflügel werden hierbei mit einem erdgeschossigen Erweiterungsbau verbunden, wodurch ein Innenhof für den Hort entsteht.
Der geplante Baubeginn  in 2023 und die Baumaßnahme soll bei laufendem Schulbetrieb durchgeführt werden.

Im Zuge der Planungen für die Erweiterung der Grundschule Dachau Ost wurde von der Regierung von Oberbayern in Verbindung mit der bestehenden Mittelschule der Bedarf einer Dreifachsporthalle festgestellt. Es wurde beschlossen, die bestehende Halle abzureißen und am gleichen Standort eine neue Dreifachschulsporthalle mit Vereinsnutzung, Konditions- und Gymnastikräume, Hausmeisterwohnung und einem erdgeschossigen Parkdeck zu errichten. 
Die Halle ist aufgeständert, so dass die Parkplätze keine zusätzliche Freifläche benötigen, um hier die Freiflächen für die Pausen- und Grünflächen zu nutzen. Der südliche Gebäudetrakt ist dreigeschossig und dient zur Unterbringung der drei Umkleiden (inkl. einer Inklusionsumkleide), drei Lehrerumkleiden (inkl. einer Behindertenumkleide), drei Gymnastikräume, zwei von denen zu einem Mehrzweckraum zusammengelegt werden können, einer Tribüne für max. 199 Zuschauer, einer Besuchertoilette sowie eines Erste-Hilfe-Raumes. 
Die Hausmeisterwohnung sowie der Technikbereich sind im EG untergebracht. Das Gebäude verfügt über eine mechanische Lüftung. Die Wärmeerzeugung erfolgt mittels einer Luft-Wasser-Wärmepumpe. Für die Spitzenlasten ist ein Gasbrennwertkessel vorgesehen. Das große Hallendach soll den Stadtwerken zur Errichtung einer PV-Anlage zur Verfügung gestellt werden. Alle Gebäudebereiche sind barrierefrei erreichbar. 
Mit dem Abbruch wurde im Sommer 2022 begonnen.

Abbrucharbeiten

Förderung

Weitere Informationen zur Förderung finden Sie im Downloadbereich der Internetseite des SJK-Programms (www.sport-jugend-kultur.de).

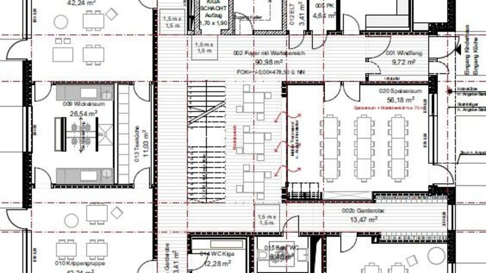
Der Neubau einer Kindertagesstätte ist auf dem Grundstück zwischen Polln- und Hackenängerstraße geplant.Auf der Nordseite ist eine Fußgängerverbindung zwischen der Polln- und Hackenängerstraße geschaffen werden. Der Freibereich für die Kinder ist nach Westen und Süden orientiert. Die Pkw- Stellplätze sind auf der Ostseite vorgesehen. Geplant sind vier Kinderkrippengruppen und zwei Kindergartengruppen die im Erd- und 1. Obergeschoss untergebracht sind. Insgesamt bietet die Kindertagesstätte Platz für circa 100 Kinder. Im Bebauungsplan ist eine dreigeschossige Bauweise vorgesehen, so dass im 2. OG sechs Wohnungen geplant sind. Die Barrierefreiheit ist in allen Geschossen für die Kita und Wohnungen gewährleistet. Die Kindertagesstätte als eigene Einheit umfasst Gruppenräume, Ruheräume mit den dazugehörigen Nebenräumen, sowie Büros, einen Mehrzweckraum, sowie und einen Speisesaal mit Aufwärmküche. Um die qualitativ hochwertigen Flächen ab Erdgeschoss für Aufenthaltsbereiche auszunutzen wurde die Technik in einer Teilunterkellerung und die Lüftung auf dem Dach untergebracht. Fahrradabstellplätze und Müll sind an der Nordseite außerhalb der Freifläche für die Kita vorgesehen. Das Flachdach soll den Stadtwerken zur Errichtung einer PV-Anlage zur Verfügung gestellt werden. 

Die geplante Lösung, bei der auf Fluchtbalkone und außenliegenden Treppen verzichtet wurde, bietet die Möglichkeit mehr Freiflächen zum Spielen einzuplanen sowie Kosten für die Herstellung und Bewirtschaftung zu reduzieren. Über einen separaten Zugang im Norden gelangt man zu den Wohnungen im zweiten Obergeschoss. Durch eine maximale Flächenausnutzung können hier sechs verschieden große Wohnungen mit eigener Loggia und einem Abstellraum untergebracht werden. Die Wohnungen sind mit einem Aufzug erreichbar und alle barrierefrei gestaltet, dies betrifft insbesondere die Bäder. Die Wohnungen haben eine Größe zwischen circa 56 bis 93 qm. Das Gebäude soll in Massivholzbauweise mit Holzfassade ausgeführt werden.
Geplanter Baubeginn ist voraussichtlich Frühjahr 2023.

Abgeschlossene Bauprojekte

Die Erweiterung der Grundschule Augustenfeld besteht aus einem viergeschossigen Neubau in Riegelbauweise, einer eingeschossigen Aufstockung des bestehenden Verwaltungstraktes und dem Umbau des Bestandsgebäudes. Der Neubau mit Mensa ist aufgeständert, so dass das Erdgeschoss als überdachte Freifläche genutzt werden kann. Die Aufstockung des bestehenden Nordtraktes wird vorerst für die Nutzung als Kinderhort und Mittagsbetreuung ausgestattet und kann später der Schulnutzung zugeführt werden. In allen Gebäudeteilen – Neubau und Bestand- soll ein Ganztagsunterricht nach dem neuen „Lernhauskonzept“ möglich werden.

Im Neubau, der als Anbau mit Anbindung an den Bestand ausgeführt ist, sind acht Klassenräume errichtet worden. In den beiden obersten Stockwerken teilen sich jeweils vier Klassenzimmer als „Cluster“ einen vorgelagerten Markplatz, einen Teamraum für die Lehrer des Clusters, einen Differenzierungsraum und die erforderlichen Nebenräume wie Garderobe, WC-Anlage und Lehrmittelraum. Ein Aufzug für die Barrierefreiheit ist vorhanden. Im ersten Obergeschoss des Anbaus sind neben der Mensa und der dazugehörigen Küche eine Küchenzeile für Schüler, ein Leseraum mit Bücherlager, eine Hausmeisterwerkstatt, ein Lagerraum und ein Archiv für die Schule untergebracht.
In der Aufstockung arrangieren sich der Raum für die Mittagsbetreuung, jeweils ein Gruppenraum und ein Hausaufgabenraum für zwei Hortgruppen und die Nebenräume wie Garderobe und WC-Anlage um den Marktplatz. Für die barrierefreie Erreichbarkeit der Aufstockung im Bestand wurde ein neuer Aufzug errichtet. Das Büro für die Hortleitung und der dazugehörige Besprechungsraum wurden im ersten Obergeschoss des Bestandes in der ehemaligen Hausmeisterwohnung untergebracht.
Der Baubeginn für die Aufstockung des Bestandes und des Neubaus war im Juni 2019. In 2021 wurden beim Anbau und der Aufstockung die Fassaden fertiggestellt und der Innenausbau fortgeführt. Es wurde die gesamte Gebäudetechnik wie die Heiz-Kühl-Decken, die Lüftungsanlage, Elektrotechnik und die Sicherheitstechnik installiert. In der Mensa im 1. Obergeschoss sind die Küchentechnik mit Kühlzellen ausgeführt worden. Zum Jahresende wurden alle Räume möbliert und mit den für den Unterricht notwendigen technischen Geräten ausgestattet. Anfang 2022 werden die Klassenzimmer im Neubau und die Räume der Mittagsbetreuung in der Aufstockung bezogen. Die dadurch freigewordenen Klassenzimmer im Bestand werden durch weitere Umbauten in zwei Abschnitten bis Mitte 2023 an das „Lernhauskonzept“ angepasst. 

Aufstockung des Bestandgebäudes und Neubau, Fertigstellung 2022.

Neubau der Grundschule Augustenfeld von Außen

Neubau mit Übergang zum Bestandsgebäude

Neu eingerichtetes Klassenzimmer

Raum für die Mittagsbetreuung mit Ruhebereich

Vorraum der Klassenräume

Mittagsbetreuung mit Sitzecken

Mittagsbetreuung mit Schränken und Waschinsel

Element1 von 7

Am 11. Juni 2021 wurde der Erweiterungsbau der Feuerwehr-Fahrzeughalle eingeweiht. Das bestehende Feuerwehrgerätehaus wurde in Richtung Süden durch einen Hallenanbau mit drei vollwertigen Stellplätzen für Feuerwehrautos erweitert und mit einem Hochregallager, sowie einem Kragarmregal ausgestattet. Der Erweiterungsbau ist durch die ehemalige Stahlbetonaußenwand, die nun zur Innenwand wurde und zwei Brandschutztüren erhielt, vom Rest der Fahrzeughalle getrennt. Die Gestaltung des Gebäudes ist in Anlehnung des Bestandes ausgeführt worden, so dass eine optische Einheit umgesetzt werden konnte. Die Außenwände bestehen aus Stahlbeton und erhielten innen wie außen einen Anstrich. Das Dach wurde mit Kalzip eingedeckt. Die technische Gebäudeautomation (Abgasabsaugung, Sektionaltore) wurde an die KNX-Serveranlage angeschlossen. Anfang Juni 2021 erfolgte die Nutzungsaufnahme des Erweiterungsbaues, der Hallenanbau ist seither in vollem Betrieb.

Das Gebäude der ehemaligen Ludwig-Thoma-Mittelschule wurde für eine neue Nutzung durch die Dachauer Volkshochschule umgebaut. Im Zuge des Umbaus wurde unter anderem im Rahmen der Nationalen Klimaschutzinitiative des Bundesumweltministeriums die Innenbeleuchtung saniert. Weitere Informationen zu dem Förderprojekt finden Sie hier:
Klimaschutzprojekt Sanierung Innenbeleuchtung der vhs

Um schnellstmöglich zusätzliche Betreuungsplätze zu schaffen, bot sich als kurfristig verfügbarer Standort die Containeranlage auf der Ludwig-Thoma-Wiese an. Die Containeranlage wurde bisher als Ausweichmöglichkeit für die Mittelschule Süd verwendet, die jetzt fertiggestellt ist. Nun soll die Anlage für eine dreigruppige Kinderkrippe genutzt werden. Der Träger der Einrichtung ist die Caritas mit dem benachbarten Kindergarten Nazareth. Die Umbauarbeiten sind abgeschlossen, so dass der Betrieb mit vorerst zwei Kinderkrippengruppen starten konnte. Die dritte Gruppe wird erst zu einem späteren Zeitpunkt von der Caritas in Betrieb genommen.

Die Mittelschule Süd in der Eduard-Ziegler-Straße wurde durch Aufstockung eines gesamten Stockwerkes erweitert, um weitere Klassenräume zu schaffen und die Schule auch für Ganztagszüge nutzen zu können. In Summe entstanden ca. 2250 qm zusätzliche Geschossfläche. Durch die Dach- und Fassadensanierung wurden erhebliche Einsparungseffekte erzielt. Bei der Gestaltung und Ausführung wurde besonderer Wert auf die Nachhaltigkeit und Unterhaltsfreundlichkeit gelegt.

Die Außenanlagen wurden zusammen mit den Außenanlagen der benachbarten Grundschule und dem Kinderhort logisch fortgeführt. Die komplette Planung und Bauleitung wurde, wie auch schon die Machbarkeitsstudie von GHK-Architekten PartGmbB, Dachau durchgeführt. Das Gebäude ging zum Schuljahr 2019/20 wie geplant in Betrieb. Die offizielle Einweihungsfeier fand am 24. Januar 2020 statt.
Bilder zur Einweihungsfeier:

Im Familien- und Sozialausschuss vom 27.03.2019 wurde für die Erweiterung der Klosterschule der Bedarf von weiteren vier Klassenräumen mit Nebenräumen zugestimmt. Für die temporäre Errichtung dieses Raumbedarfes wurden mehrere Bauplätze untersucht und der Freifläche des Anwesens der Burgfriedenstraße 1 zugestimmt. Da die Gebäude der nachfolgenden Grundstücke unter Ensemble-Denkmalschutz stehen, konnte nur durch die zeitliche Begrenzung auf fünf Jahre einer Errichtung der Containeranlage zugestimmt werden. Das Gebäude beinhaltet vier Klassenzimmern für je 25 Kinder, drei Fach- bzw. Lehreräumen mit entsprechenden Sanitär-, Erschließungs- und Anschlussräumen. Die Inbetriebnahme erfolgte im November 2019.

Im Frühjahr 2017 hatte der Familien- und Sozialausschuss beschlossen, auf dem Gelände der Grund- und Mittelschule Ost ein temporäres Gebäude mit drei Hort- und einer Mittagsbetreuungsgruppe zu errichten, um den aktuellen Bedarf der Grundschule abzudecken. Somit wurde noch Ende 2017 eine Containerbaufirma mit den Leistungen beauftragt. Die Anlage wurde von der Stadt gekauft. Im Mai 2018 wurden die Gebäudeteile geliefert und montiert. Aufgrund einiger Schwierigkeiten mit der beauftragten Containerfirma bezüglich fehlender Zulassungen und Nachweise konnte erst nach längerer Verzögerung im Herbst 2018 mit dem Ausbau der Anlage fortgefahren werden, so dass die AWO ab Anfang 2019 die Nutzung des Hortbetriebs aufnehmen konnte. Zwischenzeitlich wurden die Räumlichkeiten wegen eines Wasserschadens im Kinderhaus Augustenfeld auch als Kindergarten genutzt. Hierfür wurden die Außenanlagen dementsprechend gestaltet.

Die bestehende Sommerstockbahn in der Ludwig-Dill-Straße musste bis September 2017 der Baustelle des Hallenbad-Neubaus weichen. Im Sommer 2017 wurde dann eine Anlage mit vier Bahnen, einem Vereinsgebäude und 12 KfZ-Stellplätzen in der Kufsteiner Straße errichtet. Die Zuwegung zum Gelände erfolgt über den bestehenden nordwestlichen Zufahrtsweg zur Skateranlage. Der Neubau des Vereinsheims wurde als Riegelgebäude mit Lager, Technikraum, sowie zwei separaten WC-Anlagen von insgesamt 60 m² neu errichtet. Eine der WC-Anlagen wurde barrierefrei ausgeführt und steht den Nutzern der bestehenden Skateranlage zur Verfügung. Das Vereinsheim wurde Anfang November fertiggestellt und konnte mit den Bahnen dem Betreiber 2018 übergeben werden. Die Einweihung fand im Juli 2018 statt.

Die bestehende Kindertagesstätte an der Geschwister-Scholl-Straße 4a wurde durch einen Neubau im Bereich des zweigeschossigen Luftraumes über dem Erdgeschoss um eine Hortgruppe erweitert. Bei der eingeschossigen Erweiterung um eine Gruppe wurde die Freispielfläche auf das neu errichtete Dach verlegt. Die Baumaßnahme wurde von Mai 2017 bis Jahresende 2017 durchgeführt Die Fertigstellung der Außenanlagen erfolgte zum Frühjahr 2018.

Der Neubau des zweigeschossigen Fahrradparkhauses liegt östlich des Bahnhofs und grenzt an den vorhandenen Zugangsweg zur Bahnunterführung. Es wurden 1.022 Fahrradstellplätze ausgeführt.Im Erdgeschoss befindet sich eine öffentliche Toiletten-Anlage mit Behinderten-WC. Die Fassade sowie die Grundrissebenen sind – soweit dies konstruktiv möglich – offen und transparent gestaltet. Dies wurde durch die Betonkonstruktion mit innenliegenden Stützen und der Fassade im Obergeschoss als offene Holzkonstruktion, im Erdgeschoss mit begrünten Rankseile-Fassaden erreicht.

Durch mehrere Zu-und Ausgänge wird der Charakter der Transparenz zusätzlich unterstützt. Die Erschließung des Obergeschosses erfolgt über drei Treppen, teilweise mit Schiebespuren und einer innenliegenden Rampe für Radler. Die offizielle Einweihungsfeier fand im Dezember 2017 statt. (Fotos: Rainer Taepper Architekturfotografie). Weitere Informationen zur Förderung im Rahmen der Nationalen Klimaschutzinitiative finden Sie im Dokument zur Nationalen Klimaschutzinitiative. Im Mai 2018 erhielten wir ein Zertifikat der Nationalen Klimaschutzinitiative.

In Pellheim wurde das bestehende Feuerwehrgerätehaus der Freiwilligen Feuerwehr, das für die neuen Feuerwehrwägen zu klein war, durch einen zweigeschossigen Neubau ersetzt. Im Erdgeschoss sind zwei Garagen für das Feuerwehreinsatzfahrzeug und den Mannschaftswagen mit integriertem Garderoben- und Einsatzbereich, die den technischen und nutzungsspezifischen Anforderungen gerecht werden. Im Obergeschoss sind Schulungsraum, Büro und Nebenräume untergebracht. Die Bauarbeiten konnten Anfang 2016 begonnen werden, so dass zum 08.12.2016 die Fertigstellung der Roharbeiten mit einem Richtfest gefeiert werden konnte. Die Feuerwehr hat im Oktober 2017 mit einem großen Dorffest den Einzug ins neue Gebäude gefeiert.

Während der Generalsanierung und Erweiterung der Mittelschule Dachau Süd zogen die Schüler für eine Dauer von zwei Jahren ab September 2017 in die leerstehende Ludwig-Thoma-Schule um. Da in der Ludwig-Thoma-Schule zu wenig Klassenzimmer für die Schülerzahl vorhanden waren, wurden zusätzlich Mietcontainer für 4 Klassen aufgestellt. Als Standort für das Provisorium wurde die Sportfläche südwestlich der Turnhalle gewählt, um den Betrieb des jährlich stattfindenden Volksfestes nicht einzuschränken. Es wurde ein zweigeschossiges Gebäude mit einer Fläche von ca. 18 x 12 m  in Containerbauweise angemietet und fristgerecht zum Schuljahresbeginn im September 2017 aufgestellt.

Im Frühjahr 2017 hatte der Familien- und Sozialausschuss beschlossen, die bestehende zweigeschossige Containeranlage um ein weiteres Geschoss aufzustocken. Die Nutzung der weiteren Räumlichkeiten umfasst zwei weitere Klassenräume. Die Arbeiten wurden im Sommer 2017 durchgeführt, so dass der Schulbetrieb zu Schuljahresbeginn im September 2017 starten konnte.

Der dringende Wunsch der Bevölkerung konnte nun endlich erfüllt werden. Die öffentliche Toilette am Unteren Markt wurde im Dezember 2016 fertiggestellt und im Januar 2017 in Betrieb genommen. Diese besteht aus einer Damen- bzw. Behindertenkabine, einer Herrenkabine und einem Technikraum. Eine baugleiche WC-Anlage wurde auch im Waldfriedhof, Eingang Hochstraße errichtet. Diese wurde im Frühjahr 2017 in Betrieb genommen.

Das zweigeschossige Gebäude aus einem massivem Betonkern mit hinterlüfteter Lärche-Naturholz-Schalung ist für die Unterbringung von vier Kinderkrippengruppen mit dem jeweils erforderlichen Personal und entsprechenden Nebenräumen gebaut. Es ist so konzipiert, dass eine Erweiterung um weitere zwei Krippengruppen möglich ist. Die Baumaßnahme wurde Ende 2016 fertiggestellt und von der Arbeiterwohlfahrt Dachau in Betrieb genommen.

Als Erweiterung des pädagogischen Angebots ist im Frühjahr 2016 an der Schinderkreppe in Dachau-Süd ein Bauwagen für den Waldkindergarten  geliefert und aufgestellt worden. Der beheizbare Bauwagen, der bei schlechtem Wetter „Unterschlupf“ gewährt, ist in robuster handwerklicher Rahmenbauweise aus Holz mit Holzverkleidung und Dämmung ausgeführt. Zwei überdachte Eingänge und die Vorräume bieten Platz für Garderobe und Schränke, so dass der Innenraum flexibel möblier bar ist. Der Bauwagen wurde Ende 2015 bestellt und eigens für die Stadt Dachau angefertigt. Im Mai 2016 wurde dieser an die AWO als Betreiber übergeben, so dass die ersten Kinder im Mai den Wald genießen konnten.

Zur Schaffung von weiteren Kinderbetreuungsplätzen im Stadtgebiet Dachau wurde Ende Mai 2014 beschlossen, auf der Parkplatz- und Grünfläche vor dem Kinderhaus Augustenfeld ein mobiles Provisorium für eine Kinderkrippen- und eine Hortgruppe zu errichten. Fertigstellung Juli 2015.

Als schnelle Reaktion auf fehlende Klassenzimmer und den Bedarf einer weiteren Hortgruppe wurde im September 2014 an der Grundschule Dachau-Ost ein mobiles Provisorium mit direkter Anbindung an das Bestandsgebäude errichtet. Im Oktober 2014 konnten die beiden Klassenzimmer im Obergeschoss bezogen werden, im Erdgeschoss ging eine Hortgruppe mit Hausaufgaben- und Gruppenraum in Betrieb, die vom benachbarten Regenbogenland der AWO mitbetreut wird.

In Ergänzung des Adolf-Hölzel-Hauses am Ernst-Reuter-Platz wurde ein eigenständiges Veranstaltungsgebäude mit variablen Gruppenräumen und einer Küche erbaut. Das Büro für die Selbstverwaltung durch den Bürgertreff-Ost e.V. ist ebenfalls im Neubau untergebracht. Die Planungen erfolgten in enger Abstimmung mit den Bürgern. Der Baubeginn erfolgte im September 2014, die Übergabe an den Nutzer fand im September 2015 statt. (Foto: Florian Holzherr)

Gebaut wurde eine Dreifach-Schulsporthalle mit Außenanlagen für die Grundschule Augustenfeld und die Montessori-Schule Dachau. Die Halle wird neben den Schulen auch für den Vereinssport genutzt, so dass eine vollzeitliche Auslastung stattfindet. Das Bauwerk wurde in massivem Stahlbeton mit hinterlüfteter Trespa-Fassade errichtet. Diese Fassade wurde in Zusammenarbeit mit einem Künstler gestaltet. Eine Unterkellerung fand wegen hohen Grundwasserspiegels nicht statt. Die lichte Sporthallenhöhe beträgt ca. 7 Meter. Durch aufgesetzte Sheddächer kann die Halle natürlich belichtet und belüftet werden. Die nach Süden ausgerichteten Flächen der Sheddächer dienen der Energieerzeugung durch Photovoltaik- und Solaranlage. Der Nebenraumtrakt mit Umkleiden im OG  und Gerätelagern im EG ist zweigeschossig und beinhaltet einen zusätzlichen Gymnastikraum. Der Gang zu den Umkleidekabinen kann auch als Zuschauergalerie genutzt werden. Die Dreifach-Schulsporthalle wurde im April 2015 in Betrieb genommen.

Die Grundschule Dachau-Ost wurde ab Sommer 2010 in drei Bauabschnitten generalsaniert. Die Arbeiten des dritten und letzten Bauabschnittes wurden zum Jahreswechsel 2014/2015 fertig gestellt.

Nach Erwerb des Nachbargrundstückes von der Bahn konnte eine Erweiterung der im September 2013 fertiggestellten Kinderkrippe erfolgen. Das Gebäude ist in massiver zweigeschossiger Ziegelbauweise ohne Unterkellerung gebaut. Die Erweiterung umfasst Räumlichkeiten für zwei weitere Krippengruppen und einen Mehrzweckraum, der auch autark für Veranstaltungen genutzt werden kann. Baubeginn Mai 2013, Fertigstellung und Nutzungsaufnahme des Gebäudes im Februar 2014. Fertigstellung der Außenanlagen mit Balkonen und Dachterrasse über Mehrzweckraum Frühjahr/Sommer 2014. Die Trägerschaft übernahm das Franziskuswerk Schönbrunn.

Auf dem Gelände der Grund- und Mittelschule Süd in der Eduard-Ziegler-Straße entstand ein dreigeschossiger Kinderhort mit vier Gruppen anstelle der ehemaligen Fahrradhalle im Schulhof. Im Juli 2012 wurde das Gebäude und Außenanlagenkonzept „Schule im Park“ beschlossen. Der Hortneubau ist in Mischbauweise erstellt. Das Erdgeschoss besteht aus Betonfertigteilen. Hier befinden sich außer Funktionsräumen auch der Mehrzweckraum und ein Kindercafé mit komplett eingerichteter Küche. Die oberen Geschosse mit allen Gruppenräumen sind reine Holzbauten. Die Außenanlagen mit der Freiflächengestaltung wurden im Frühjahr 2014 fertiggestellt.

Anstelle des abgebrochenen landwirtschaftlichen Gebäudes ist ein dreigeschossiger Neubau direkt an den Altbau mit drei Hortgruppen und einer Kindergartengruppe angebaut worden. Der Erhalt des Gartenbereichs mit altem Baum- und Obstbaumbestand wurde erweitert mit einem attraktiven Spielbereich. Es gibt extra Parkstreifen für das Bringen und Abholen der Kinder. Nach nur 9-monatiger Bauzeit konnte der Betrieb im Oktober 2013 aufgenommen werden. Die Außenanlagen wurden im Jahr 2015 nach Abschluss der Altbausanierung fertig gestellt.

Neubau eines Kinderhauses in der Joseph-Effner-Straße mit 2 Krippengruppen und 4 Kindergartengruppen. Baubeginn mit Abbruch- und Freiräumarbeiten am 30.04.2012. Fertigstellung zum Beginn des Kindergartenjahres 2013/2014 im September 2013 mit Inbetriebnahme durch die Caritas.

Neubeu eines Kinderhauses mit 5 Krippengruppen und 1 Kindergartengruppe, sowie Musikübungsräumen im Kellergeschoss und Außenanlagen.
Das Gebäude ist in massiver zweigeschossiger Ziegelbauweise mit Vorsatzschalung aus unbehandeltem Lärchenholz mit Unterkellerung gebaut. Zusätzlich werden dem Betreiber ein Bewegungsraum im Kellergeschoss, der umgebaute ehemalige Feuerwehrschlauchturm sowie renovierte Nebengebäude zur Verfügung gestellt. Acht schallgedämmte Kellerräume stehen für Musikbands zum Üben bereit. Das Gebäude wurde im September 2013 durch das Franziskuswerk Schönbrunn in Betrieb genommen.

Erweiterung der Mittelschule an der Anton-Günther-Straße um einen Speisesaal mit Küche. Das eingeschossige Gebäude ohne Keller wurde auf dem Pausenhof der Mittelschule gebaut. Es schließt direkt an den Verbindungsgang Mittelschule / Grundschule an. (Foto: Jürgen Klust)

Neubau eines Pavillons für Jugendliche nahe dem Jugendzentrum Dachau Ost im Rahmen des Projektes „Soziale Stadt Dachau Ost“. Der ovale Pavillon besteht aus vorgefertigten Stahlbetonbauteilen und einer Dachkonstruktion in verzinktem Stahl. Einbindung in die vorhandene Parkstruktur. Fertigstellung im Herbst 2012.Neubau eines Pavillons für Jugendliche nahe dem Jugendzentrum Dachau Ost im Rahmen des Projektes „Soziale Stadt Dachau Ost“. Der ovale Pavillon besteht aus vorgefertigten Stahlbetonbauteilen und einer Dachkonstruktion in verzinktem Stahl. Einbindung in die vorhandene Parkstruktur. Fertigstellung im Herbst 2012.

Neubau eines Krippenhauses, bestehend aus vier Kinderkrippengruppen an der Friedenstraße 4. Die Trägerschaft übernahm das Franziskuswerk Schönbrunn. Das Gebäude ist in massiver zweigeschossiger Ziegelbauweise ohne Unterkellerung gebaut, entsprechend den Anforderungen der Energieeinsparverordnung 2009.  Baubeginn April 2011, Baufertigstellung April 2012.

Neubau Unterstellhalle beim Zugang des Stadtfriedhofes an der Herbststraße für Stadtbauhof und Stadtgärtnerei zur Lagerung von Gerätschaften, Container und Material.
In den Vorjahren Errichtung einer Stützmauer mit Einfriedung zum Nachbargrundstück mit Neugestaltung und Verbreiterung des Friedhofzugangs. Fertigstellung der Unterstellhalle in Stahlkonstruktion mit Naturholzschalung im Frühjahr2012.

Renovierung der denkmalgeschützten Künstlervilla in der Münchner Straße mit Nutzung als historisches Denkmal „Museum Ruckteschell“, Raum für kulturelle Veranstaltungen, Künstleratelier, Künstlerwohnung und Appartements.Generalsanierung (statische Gebäudesicherung, Dach-, Fassaden- und Ausbauarbeiten, Kompletterneuerung der Haustechnik Elektro, Heizung, Sanitär). Umsetzung des Preisträgerbeitrags des Künstlerwettbewerbes („Rotes Band“) und Außenanlagen. Fertigstellung August 2011

Umbau eines Ladenlokals zum Stadtteilbüro für Quartiersmanagement Soziale Stadt Dachau-Ost. Einbau einer Teeküche. Bauzeit Mitte August bis Anfang September 2010.

Komplettsanierung der denkmalgeschützten Villa und Umbau zum zweigruppigen integrativen Kindergarten. Fertigstellung: Mai 2009

Neubau eines sechsgruppigen Kinderhauses, bestehend aus vier Kinderhortgruppen, zwei Kinderkrippengruppe und einem Mehrzweckraum mit allen erforderlichen Nebenräumen und Außenanlagen Fertigstellung April 2009

Neubau einer 4-zügigen Grundschule mit Hausmeisterwohnung und Freisportanlagen. Nutzung des 4. Zuges vorerst als Kinderhort, Mittagsbetreuung und Gymnastikraum. Fertigstellung zum Schuljahresbeginn 2006/2007.

Erweiterung der bestehenden Grundschule an der Klosterstraße um 4 Klassenräume mit Mehrzweckraum und mit Außenanlagen. Es handelt sich um einen dreigeschossigen Baukörper mit Pultdach in massiver Ziegelbauweise mit Wärmedämmverbundsystemputz und extensiver Flachdachbegrünung. Die Inbetriebnahme erfolgte für ein Klassengeschoss bereits zum Schuljahresbeginn September 2004. Zum Thema Kunst und Bauen wurde im Eingangsbereich von den Schülern ein keramisches Kunstobjekt in die Außenfassade integriert.

Umbau der ehemaligen Kirchenschule in eine Markthalle. Das Projekt wurde nach zweijähriger Umbauzeit 2002 fertiggestellt.