Stadtplanerische Projekte

Stadtplanerische Projekte

Folgend finden Sie wichtige städtebauliche Planungen im Stadtgebiet Dachau – jeweils unterteilt in

  • aktuell laufende und bereits abgeschlossene Planungen
  • formelle und informelle Planungen

Die städtebaulichen Planungen erstrecken sich einerseits auf das gesamte Stadtgebiet andererseits auf einzelne Teilbereiche im Stadtgebiet.

Formelle Planungen - Bebauungspläne, Flächennutzungsplan

Folgend finden Sie die laufenden – sich noch im Verfahren befindenden – formellen städtebaulichen Planungen.

 

Das Verfahren zur rechtlichen Sicherung der Erschließung der Grundstücke an der Äußeren Langwieder Straße sowie der Hermann-Böcker-Straße wurde mit Aufstellungsbeschluss des Bau- und Planungsausschusses am 06.05.2025 für den Bebauungsplan 190/25 „Äußere Langwieder Straße, Straßenbebauungsplan“ Straßenbebauungsplan“ eingeleitet.

Hierfür wird durch die Stadtplanung ein Vorentwurf des Bebauungsplans in Abstimmung mit weiteren Fachabteilungen der Stadt erarbeitet.

BP 190/25 Geltungsbereich mit Luftbild

Am 09.04.2024 wurde der Bebauungsplanvorentwurf im Bau- und Planungsausschuss beschlossen. Die frühzeitige Beteiligung wird vom 18.04.2024 bis 15.05.2024 durchgeführt.

Im Frühjahr 2026 sollen Abwägung und Bebauungsplanentwurf im Bau- und Planungsausschuss beschlossen werden.  Im Anschluss wird dann die öffentliche Auslegung erfolgen.
Durch das Bebauungsplanverfahren soll der dringend benötigte geförderte Wohnraum entstehen. Das stadteigene Baugebiet im Bereich des Udldinger Hangs ist mit einer Fläche von ca. 1,9 ha das letzte große und unbebaute Innenbereichsgrundstück mit Baurecht in Dachau. Ziel der Planung ist ein zukunftsorientiertes, nachhaltiges und sozial durchmischtes Wohnquartier.

Flächennutzungsplan
Flächennutzungsplan
Landschaftsplan
Landschaftsplan

Neuaufstellung Flächennutzungsplan mit integriertem Landschaftsplan (Planung noch nicht verbindlich!)

 
Vorläufiger Vorentwurf des neuen Flächennutzungsplans
Der aktuell gültige Flächennutzungsplan der Stadt Dachau, der bereits im Jahre 1989 von der Regierung von Oberbayern genehmigt wurde, bedarf einer grundsätzlichen Überarbeitung. Neben den regelmäßig erfolgten räumlichen Teiländerungsverfahren, ist alleine aufgrund des Alters des Flächennutzungsplans und der damaligen Herangehensweise an die Planung, eine Neuaufstellung erforderlich. Zur Steuerung der gesamtstädtischen Entwicklung beinhaltet der Flächennutzungsplan die städtebaulichen Zielvorstellungen der Stadt Dachau.

Am 13.05.2025 wurde vom Stadtrat der Vorentwurf zur Neuaufstellung des Flächennutzungsplans mit integriertem Landschaftsplan sowie Begründung und Umweltbericht gebilligt. Das frühzeitige Beteiligungsverfahren nach § 3 Abs. 1 BauGB und § 4 Abs. BauGB erfolgte vom 25.06.2025 bis 08.09.2025.
Präsentation zur Bürgerinformation-Neuaufstellung FNP von 26-06-2025

In diesem Zeitraum sind zahlreiche Stellungnahmen von der Öffentlichkeit sowie von den beteiligten Behörden eingegangenen.

Alle Stellungnahmen werden vom Stadtbauamt sachgerecht geprüft, dokumentiert und dem Stadtrat im Rahmen der Abwägung nach § 1 Abs. 7 BauGB zur Entscheidung vorgelegt.

Nach Abschluss dieser Abwägung kann ein Planentwurf erstellt werden, der sodann in die förmliche Auslegung gemäß § 3 Abs. 2 BauGB geht. Voraussichtlich wird dies Ende 2026 erfolgen.

Hinweis: Alle eingegangen Stellungnahmen werden im Rahmen des Verfahrens und unter Berücksichtigung der gesamtstädtischen Planungsziele sorgfältig gegeneinander und untereinander abgewogen.

FNP Planzeichnung Planteil 1

Landschaftsplan Planteil 2



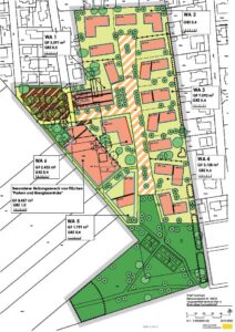
Der Ferienausschuss fasste am 24.02.2021 den Aufstellungsbeschluss für den Bebauungsplan 183/21 „Augustenfeld Zentrum (Teil 1) Ehemaliges Sportgelände“. Die Einleitung der Teiländerung des Flächennutzungsplans wurde am 05.10.2021 beschlossen; beide Verfahren laufen im Parallelverfahren.
Mit Inkrafttreten des Bebauungsplans 174/19 „Sportpark östlich Theodor-Heuss-Straße (Teil 1)“ Ende 2020 sowie der bereits Anfang 2020 abgeschlossenen Teiländerung des Flächennutzungsplans wurden die planungsrechtlichen Voraussetzungen für die Teilaussiedlung des TSV Dachau 1865 e.V. geschaffen. Damit ist eine Überplanung des bisherigen Stammgeländes möglich. Das Areal liegt innerhalb der Rahmenplanung Augustenfeld Nord, die 2017 mit intensiver Bürgerbeteiligung beschlossen wurde.
Ziel des Bebauungsplans ist die Schaffung von Baurecht für Wohn- und Gemeinbedarfsflächen sowie Grünflächen. Entlang der Jahnstraße ist ein autoarmes Wohngebiet vorgesehen. Der Geltungsbereich umfasst ca. 43.622 m², davon rund 76 % im Eigentum des TSV Dachau 1865 e.V.; die restlichen 24 % stammen aus städtischen Flächen zur Sicherung der Erschließung und des Grünzugs.
Die vertraglichen Grundlagen liegen vor, die Planungen laufen. Am 23.10.2024 billigte der Bau- und Planungsausschuss den Vorentwurf und leitete die frühzeitige Beteiligung ein (11.11.–03.12.2024). Die Stellungnahmen führten zu einer Überarbeitung des Entwurfs: Ausgleichsflächen wurden über das städtische Ökokonto zugeordnet, Gutachten aktualisiert und zusätzliche Untersuchungen, u. a. zur Niederschlags- und Grundwasserbewirtschaftung, beauftragt. Eine ergänzende Verkehrszählung bestätigte die Verträglichkeit der Verkehrsbelastung. Das Immissionsschutzgutachten wurde überarbeitet; Maßnahmen wie eine Lärmschutzwand oder die Einhausung von Parkhausaufbauten wurden geprüft. Entlang der Alpenstraße wurden Bauhöhen (max. 9 m) und Abstandsflächen konkret festgesetzt.
Mit dem Abwägungsbeschluss liegt eine überarbeitete Planung vor, die zusammen mit den ergänzten Gutachten und dem städtebaulichen Vertrag zur Billigung und anschließenden Auslegung vorbereitet wird. Am 25.11.2025 fasste der Bau- und Planungsausschuss den Abwägungsbeschluss; der Vertragsentwurf mit dem TSV Dachau 1865 befindet sich in rechtlicher Abstimmung.

BP-183-21_Augustenfeld Zentrum Ehemaliges Sportgelände-Entwurf Planzeichnung

Die Teiländerung des Flächennutzungsplans FP 05021 dient der Schaffung der planungsrechtlichen Voraussetzungen für den Bebauungsplan BP 183/21 und damit der Umwandlung der bisherigen Sportfläche in ein neues Wohnquartier mit ergänzenden Grünbereichen. Der rund 4,3 ha große Bereich wird im Norden als Wohnbaufläche dargestellt; die geplante Kindertagesstätte wird über den Bebauungsplan in den unteren Geschossen gesichert. Der südliche Teil wird als Grünfläche ausgewiesen, um klimatische und städtebauliche Funktionen zu gewährleisten.
Im Rahmen der frühzeitigen Beteiligung Ende 2024 gingen Stellungnahmen von Bürgern und Behörden ein, insbesondere zu Verkehr, Abstandsflächen, Bodenbelastungen und der rechtlichen Darstellung der Gemeinbedarfsfläche. Die Prüfung ergab, dass die ursprünglich vorgesehene Gemeinbedarfsfläche rechtlich nicht geeignet ist, da Wohnen und soziale Einrichtung kombiniert werden sollen. Daher wurde sie im Entwurf als Wohnbaufläche dargestellt, wodurch die geplante Nutzung rechtssicher ermöglicht und die Grundlage für den Bebauungsplan geschaffen wird. Planzeichnung und Begründung wurden entsprechend überarbeitet; weitere Einwendungen wurden im Rahmen des Bebauungsplans BP 183/21 behandelt. Die Teiländerung des Flächennutzungsplans wird weiterhin im Parallelverfahren mit dem Bebauungsplan BP 183/21 geführt und soll zeitgleich öffentlich ausgelegt werden.

FP-050-21 Augustenfeld Zentrum Ehemaliges Sportgelände-Entwurf

In Dachau besteht ein anhaltend hoher Bedarf an Kindertagesstätten und Wohnraum. Für das Grundstück „Pollnstraße 1“ sowie zwei angrenzende städtische Flurstücke wurde in Abstimmung mit der Stadt ein städtebauliches Konzept erarbeitet, das der Bau- und Planungsausschuss am 21.09.2021 billigte und mit dem die Aufstellung des Bebauungsplans 180/20 beschlossen wurde.
Ziel der Planung ist die Schaffung von Baurecht für eine 8–10‑gruppige Kindertagesstätte sowie für privaten und geförderten Wohnungsbau. Die Bebauung soll behutsam in den hochwertigen Grünraum eingebunden werden; alter Baumbestand und naturnahe Freiflächen sollen weitgehend erhalten bleiben. Das Baudenkmal „Villa Dorner“ mit Gartenensemble wird integriert und öffentlich zugänglich gemacht. Vorgesehen ist ein kleiner, qualitätsvoller, verkehrsberuhigter Quartiersmittelpunkt. Grundlage bildet die Teilung des privaten Grundstücks FlNr. 882 mit anschließendem Flächentausch. Eine städtebauliche Grundlagenvereinbarung liegt vor.
Auf Basis des Konzepts wurde ein Vorentwurf erarbeitet, der Denkmalschutz, Erschließung, Verkehr, Nachbarschutz, Umwelt- und Artenschutz sowie Klimabelange umfassend berücksichtigt. Am 09.04.2024 billigte der Bau- und Planungsausschuss den Vorentwurf und leitete die frühzeitige Beteiligung (13.05.–10.06.2024) ein.
Die eingegangenen Anregungen führten u. a. zu zusätzlichen Baumreihen und Pflanzflächen, angepassten Gebäudehöhen und einer präzisierten Verkehrsführung. Die Tiefgaragenzufahrten erfolgen künftig über die Otto‑Wirsching‑Straße und die teilweise neu herzustellende, verkehrsberuhigte Wilhelm‑Leibl‑Straße, die zugleich als Feuerwehrzufahrt dient. Nach den Hochwasserereignissen 2024 wurde ein hydrogeologisches Gutachten erstellt, das nur geringe Auswirkungen auf den Grundwasserspiegel prognostiziert und Schutzmaßnahmen vorsieht; ergänzend wurde ein Niederschlagswasserkonzept beauftragt.
Die denkmalgeschützte Villa wird in die Planung eingebunden; Artenschutzmaßnahmen wie Ersatzquartiere für Fledermäuse und Vögel sowie ein insektenfreundliches Beleuchtungskonzept sind vorgesehen. Parallel wird der städtebauliche Vertrag mit dem privaten Grundstückseigentümer abgestimmt. Nach Abschluss des Vertrags wird die überarbeitete Planung mit allen Gutachten dem Bau- und Planungsausschuss zur Billigung und zur Fassung des Auslegungsbeschlusses vorgelegt. Der Abwägungsbeschluss liegt bereits vor; anschließend erfolgt die öffentliche Auslegung.

BP 180-20 Pollnstraße 1 – Planzeichnung-Entwurf

Für den Bereich Pollnstraße 1 hat die Stadt Dachau eine Teiländerung des Flächennutzungsplans beschlossen, um die planungsrechtlichen Voraussetzungen für den Bebauungsplan Nr. 180/20 zu schaffen. Der Stadtrat fasste am 07.05.2025 den Beschluss zur Einleitung des Verfahrens, zur Billigung des Vorentwurfs und zur Durchführung der frühzeitigen Beteiligung, die parallel zum Bebauungsplan erfolgte.
Mit der Teiländerung werden die bisherigen Darstellungen angepasst: Bereiche, die bislang als Grünfläche oder reines Wohngebiet ausgewiesen waren, werden künftig als Gemeinbedarfsflächen für soziale Zwecke dargestellt. Die denkmalgeschützte Villa Dorner wird als Mischgebiet ausgewiesen, um eine spätere Nutzung zu ermöglichen. Die historischen Grünstrukturen und die Parkanlage bleiben erhalten und sollen öffentlich zugänglich werden. Die Grünfläche mit Schutz- und Leitpflanzung im Nordwesten sowie die bisherige Gemeinbedarfsfläche (Kindergarten) werden künftig als Allgemeines Wohngebiet dargestellt.
Damit entsteht die planungsrechtliche Grundlage für neue Wohnbebauung, eine Kindertagesstätte und die öffentliche Nutzung des historischen Ziergartens. Zugleich wird ein städtebauliches Ensemble geschaffen, das Wohnnutzung, soziale Infrastruktur und den Erhalt der Villa Dorner mit ihren Freianlagen verbindet.

 

FP-051-22_FNP_Pollnstraße 1-Entwurf

Nach Aufgabe der Schulnutzung der Griechischen Schule auf dem städtischen Grundstück Ignaz‑Taschner‑Straße 14 im Jahr 2013 wurde ein Plangutachten durchgeführt, das am 21.06.2016 mit dem Beschluss des Siegerentwurfs abgeschlossen wurde. Die Bürgerschaft war 2015 und 2016 im Rahmen einer moderierten Beteiligung eingebunden. Nach Überarbeitung des Siegerentwurfs lag am 16.05.2017 ein städtebaulicher Entwurf vor, auf dessen Grundlage der Bau‑ und Planungsausschuss am 18.07.2017 die Aufstellung des Bebauungsplans beschloss mit dem Ziel der Baurechtschaffung für eine Kindertagesstätte und Wohnen und wohnverträglichen Nutzungen. Ziel ist die Schaffung von Baurecht für sozialen Wohnungsbau, eine Kindertagesstätte sowie für nicht wesentlich störende Gewerbebetriebe im östlichen Teil des Plangebiets. Gleichzeitig soll der Betriebsstandort der landwirtschaftlichen Hofstelle im Westen des Plangebiets gesichert und deren Entwicklungsmöglichkeiten gewahrt werden.
Vom 23.07. bis 08.08.2018 erfolgte die frühzeitige Öffentlichkeits- und Behördenbeteiligung zum Vorentwurf des Bebauungsplans sowie zur parallelen Teiländerung des Flächennutzungsplans 04617. Die komplexe Gemengelage wurde aufgearbeitet und mit den Fachbehörden abgestimmt. Der Vorentwurf wurde anschließend überarbeitet, insbesondere hinsichtlich Ausgleichsflächen, Grünordnung, gefördertem Wohnungsbau, Elektromobilität und Energieversorgung.
Der mehrjährige Planungsprozess berücksichtigte fortlaufend veränderte Rahmenbedingungen. Immissionsberechnungen wurden mehrfach aktualisiert, ebenso die Gutachten zu Geruch, Lärm und Verkehr. Zur Konfliktvermeidung mit dem angrenzenden landwirtschaftlichen Betrieb ist eine Riegelbebauung vorgesehen; landwirtschaftliche Emissionen sind zu dulden. Die Bauverbotszone entlang der Staatsstraße bleibt bestehen, Stellplätze sind dort ausnahmsweise zulässig. Für die Kindertagesstätte sind ausreichende Stellplätze und sichere Fußwege vorgesehen, die Erschließung erfolgt über das lokale Straßennetz.
Am 06.05.2025 beschloss der Bau‑ und Planungsausschuss die öffentliche Auslegung, die vom 14.05. bis 24.06.2025 parallel zur Behördenbeteiligung stattfand. Die Gutachter bestätigten zuvor die Aktualität ihrer Fachgutachten. Die eingegangenen Stellungnahmen wurden abgewogen.
Der Stadtrat hat den Satzungsbeschluss gefasst.

BP 173/17 Ehem. Schule Mitterndorf – Planzeichnung

Der Entwurf der Teiländerung des Flächennutzungsplans FP 04617 wurde am 13.06.2023 vom Bau‑ und Planungsausschuss für die öffentliche Auslegung gebilligt. Die Auslegung sowie die Beteiligung der Behörden und Träger öffentlicher Belange fanden vom 26.06. bis 27.07.2023 statt. Anschließend wurde der Entwurf entsprechend den Stellungnahmen und den Ergebnissen des Bebauungsplanverfahrens überarbeitet und am 10.10.2023 vom Stadtrat gebilligt; die Teiländerung wurde damit festgestellt.
Die Genehmigung durch die Regierung von Oberbayern wurde eingeholt: Die Teiländerung wurde am 15.09.2025 vorgelegt und mit Bescheid vom 06.10.2026 gemäß § 6 BauGB genehmigt (Planfassung vom 28.07.2023, Begründung und Umweltbericht vom 01.05.2023).

FP 04617 Ehemalige Schule Mitterndorf

MD nachher

Die Zukunft des MD-Geländes (ehemalige MD Papierfabrik) ist von herausragender Bedeutung für die gesamte Stadt Dachau.
Das Areal ist zwar in privatem Eigentum, aber die künftige Gestaltung und Nutzung betrifft die Stadt in ihrer Gesamtheit und wird diese in den nächsten 50, ja 100 Jahren entscheidend beeinflussen und prägen. Deshalb ist es wichtig, dass der Stadtrat gemeinsam mit den Bürgerinnen und Bürgern die Rahmenbedingungen festlegt. Es gilt, eine nicht nur für das Planungsgebiet, sondern für die gesamte Stadt sinnvolle und ausgewogene Mischung aus Wohnen, Gewerbe, Einzelhandel, Grünflächen und öffentlichen Nutzungen zu finden. Bereits im Jahr 2007, unmittelbar nach Schließung der Papierfabrik, wurde ein städtebaulicher Ideenwettbewerb durchgeführt.  

Eine Dokumentation dieses Wettbewerbs finden Sie hier

Anfang 2008 beschloss der Stadtrat, dass die Arbeit der ersten Preisträger die Grundlage der weiteren Planung bilden soll. Dies gilt bis heute. Der aufzustellende Bebauungs- und Grünordnungsplan wie auch die Änderung des Flächennutzungsplans werden aus dem damaligen Wettbewerbsergebnis entwickelt.

Schon vor Durchführung der förmlichen Verfahren der Bauleitplanung hat die Stadt informelle Bürgerbeteiligungsverfahren zur Umgestaltung des ehemaligen MD-Papierfabrikgeländes durchgeführt. In einer ersten Phase des Bürgerbeteiligungsprozesses im Juni 2015 gaben die Bürgerinnen und Bürger über 400 Anregungen und Vorschläge ab. Im Juni 2016 fand eine weitere Planungswerkstatt zur Gestaltung der Freiräume statt, über deren Ergebnisse der Stadtrat am 27.07.2016 beschlossen hat.

Schon vor dem Einstieg in die Bauleitplanverfahren fand im Juni/Juli 2015 eine umfassende informelle Beteiligung der Dachauer Bürger zur städtebaulichen Planung auf dem Gebiet der ehemaligen MD-Papierfabrik statt. Der damalige Planstand war im Rahmen einer zweiwöchigen Ausstellung im Ludwig-Thoma-Haus zugänglich. Kommentare und Meinung konnten im Rahmen der Ausstellung abgegeben werden. Darüber hinaus gab es während des Ausstellungszeitraums eine ganztägige „Planungswerkstatt“ an einem Samstag in der die Planungsziele und die Planentwürfe unter den Bürgern und mit den Planern und der Verwaltung, unterstützt durch ein Moderatorenteam, intensiv beraten wurden und Empfehlungen für den Stadtrat formuliert wurden. Der Stadtrat hat anschließend in zwei Sitzungen sehr detailliert alle Empfehlungen behandelt.

Bei der Behandlung im Stadtrat blieben noch einige Fragen zum Freiraum offen. Der Stadtrat hat sich dafür entschieden, diese Punkte weiter mit den Bürgern zu diskutieren. Im Juni 2016 fand dafür die Planungswerkstatt „Freiraum im Fokus“ statt. Rund 25 Bürgerinnen und Bürger beteiligten sich an der Planungswerkstatt, die wie 2015 wieder von einem Moderatorenteam begleitet wurde. Fachlich wurde die Veranstaltung vom Landschaftsarchitekturbüro Lohrer Hochrein, München, begleitet. Vertreter des Stadtbauamtes standen für fachliche Auskünfte und Fragenbeantwortung bereit. Die Ergebnisse der Planungswerkstatt wurden im Juli 2016 im Stadtrat behandelt. Das Gremium beschäftigte sich erneut sehr detailliert mit den Empfehlungen der Bürger.

Seit dem Jahr 2019 finden auf dem Gelände Abbruchmaßnahmen für alle nicht unter Denkmalschutz sehenden Gebäude sowie Altlastensanierungsmaßnahmen statt.
 

Erörterungsveranstaltung zu den frühzeitigen Beteiligungsverfahren
Für den Vorentwurf des Bebauungs- und Grünordnungsplans wurden im September/Oktober 2022 die frühzeitigen Beteiligungsverfahren der Öffentlichkeit wie auch der Behörden und der sonstigen Träger öffentlicher Belange durchgeführt. Die Bürgerinnen und Bürger konnten sich in eine Erörterungstermin im Ludwig-Thoma-Haus über die für mehrere Wochen ausliegenden Unterlagen informieren und Fragen zum Verfahren und zur Planung stellen. Den Vorentwurf des Bebauungs- und Grünordnungsplans finden Sie hier. Aktuell werden die eingegangenen Stellungnahmen bearbeitet, die Abwägung durch den Stadtrat vorbereitet und Auswirkungen vorgeschlagener/erforderlicher Planänderungen geprüft. 

Für die erforderlich werdende Teiländerung des Flächennutzungsplans war bereits im Jahr 2020 eine frühzeitige Beteiligung der Öffentlichkeit wie auch der Behörden und der sonstigen Träger öffentlicher Belange durchgeführt worden. Änderungen der Planung erforderten für die Flächennutzungsplan-Teiländerung erneute frühzeitige Beteiligungsverfahren, die parallel zu den Verfahren für den Bebauungs- und Grünordnungsplan durchgeführt wurden. Den Vorentwurf für die Teiländerung des Flächennutzungsplans finden Sie hier. Die Abwägung der eingegangenen Stellungnahmen durch den Stadtrat wird parallel zum entsprechenden Verfahrensschritt des Bebauungs- und Grünordnungsplans erfolgen.

Gleichzeitig mit den weiteren städtebaulichen Planungen wird mit der Grundstückseigentümerin ein städtebaulicher Vertrag erarbeitet. Darin sind u.a. die Herstellung, Kostentragung und Grundstückübertragungen an die Stadt für Verkehrs- und Grünflächen, die Folgekosten gemäß den Dachauer Grundsätzen der Baulandentwicklung, der Bau der notwendigen sozialen Infrastruktur (z.B. Kindertagesstätten), Regelungen zum Mobilitäts- und Sozialkonzept sowie die Durchführung von Architektenwettbewerben als Grundlage für die Realisierungsplanungen zu vereinbaren.

Im Jahr 2022 hatte der Bau- und Planungsausschuss entschieden ein Expertengremium zur Steuerung der grundsätzlichen Baugestaltung zu berufen. Dieses Gremium erarbeitete in mehreren Sitzungen im Jahr 2023 und 2024 Gestaltungsleitlinien, die dem Bau- und Planungsausschuss vorgeschlagen wurden. Der Ausschuss hat im März 2024 darüber beschlossen.
Die in den „Leitlinien Zukunftsquartier“ empfohlenen Änderungen und Ergänzungen des Bebauungs- und Grünordnungsplan-Vorentwurfs werden als Planungsziele weiterverfolgt. Vorgeschlagene Vorgaben für Wettbewerbe und sonstige konkurrierenden Verfahren, deren Durchführung im städtebaulichen Vertrag zu sichern ist, sind umzusetzen und vorgeschlagene sonstigen Regelungen sind im städtebaulichen Vertrag mit der Grundstückseigentümerin aufzunehmen.

Leitlinien Zukunftsquartier 2024


Neben Wohnungen und Arbeitsstätten sollen auf dem Gelände der ehemaligen MD-Papierfabrik in den denkmalgeschützten, bestehen bleibenden Gebäudeteilen auch ein Jugendkulturzentrum und ein Museumsforum, bestehend aus dem Bezirksmuseum, der Gemäldegalerie sowie einem neu entstehenden Museum für Arbeiter- und Industriekultur, realisiert werden. 

Die Bahnhof Ostseite, wo sich aktuell noch eine Kleingartenanlage befindet, soll städtebaulich überplant werden, um der zentralörtlichen Bedeutung der Fläche direkt am Dachauer Bahnhof gerecht zu werden. Überlegungen, wie mit den vorhandenen Flächen östlich der Bahn umgegangen werden soll, hat bereits die Rahmenplanung Augustenfeld Nord aufgezeigt. Für das Gebiet östlich des Bahnhofs wird die bereits im Jahr 2006 begonnene Bebauungsplanung auf dieser Grundlage fortgesetzt und als Teilbebauungsplan BP 140/06 „Bahnhof Ostseite – Augustenfeld Nord 1“ weiterentwickelt. Bei den planerischen Überlegungen zur städtebaulichen Nutzung der Fläche wird die vorgesehene Geh- und Radwegeverbindung über den Schleißheimer Kanal berücksichtigt. 
Es wurden weitergehende Untersuchungen durchgeführt, die einer zukünftigen Planung zugrunde gelegt werden können. Die Planungsziele bedürfen aufgrund von Veränderungen einer neuen Festlegung. Eine Weiterführung der Planung wird erst nach Entscheidung im Bau- und Planungsausschuss erfolgen.

 

Die Stadtbau GmbH Dachau beantragte 2021 die Teiländerung des Bebauungsplans 2/62 in Form eines vorhabenbezogenen Bebauungsplans. Der Bau‑ und Planungsausschuss stimmte dem Antrag am 24.02.2021 zu und beschloss die Aufstellung des VEP 185/21 im beschleunigten Verfahren nach § 13 i. V. m. § 13a BauGB.
Geplant sind ein Neubau entlang der Fünfkirchner Straße, der Abbruch der drei bestehenden Wohngebäude aus dem Jahr 1963 (66 Wohnungen) sowie die Neubebauung des Grundstücks. Ziel ist die Schaffung zusätzlichen Wohnraums; die neuen Wohnungen sollen im Programm der einkommensorientierten Förderung (EOF) entstehen. Die städtebauliche Grundlagenvereinbarung wurde 2022 abgeschlossen.
Für das Vorhaben wurde ein Entwurf des Bebauungs- und Grünordnungsplans erarbeitet und durch Gutachten ergänzt, darunter Artenschutz, Schallschutz und Baugrund. Am 06.05.2025 beschloss der Bau‑ und Planungsausschuss die öffentliche Auslegung (14.05.–24.06.2025).
Die Stellungnahmen wurden am 23.09.2025 abgewogen; am 16.10.2025 wurde der Durchführungsvertrag mit der Stadtbau GmbH Dachau abgeschlossen. Der Stadtrat fasste am 11.11.2025 den Satzungsbeschluss. Die Ausfertigung und ortsübliche Bekanntmachung sind für das Frühjahr 2026 vorgesehen; mit der Bekanntmachung tritt der Bebauungsplan in Kraft.

01 VEP 185-21 Fünfkirchner Straße -Ecke Würmstraße

02 VEP 185-21 Anlagen zum Bebauungsplan

03 VEP 185-21 Freiflächengestaltungsplan

Sons­ti­ge in­for­mel­le Pla­nun­gen - Rah­men­plä­ne, Struk­tur­plä­ne

Folgend finden Sie die laufenden – sich noch im Verfahren befindenden – formellen städtebaulichen Planungen.

Das Flächenmanagement ist ein Instrument, das eine nachhaltige Entwicklung von Grundstücken im Stadtgebiet unterstützen soll. Ein wichtiger Bestandteil des Flächenmanagements ist das Thema „Flächenrecycling“, also die „Wiederverwertung“ oder „Weiterverwertung“ von Flächen im Stadtgebiet. Potentielle (wieder-) nutzbare Flächen werden als sogenannte „Innenentwicklungspotentiale“ in einer Flächenmanagement-Datenbank dokumentiert.  Innenentwicklungspotentiale sind bereits erschlossene Flächen im Stadtgebiet, die möglicherweise für eine neue Nutzung geeignet sind. Dazu zählen beispielsweise nicht bebaute Grundstücke (Baulücken), ehemalige Industrie- und Gewerbeflächen (Brachflächen) oder leerstehende Wohngebäude und Bauernhöfe (Leerstände). Zusätzlich können auch Flächen, auf denen noch Aus- und Anbauten möglich sind, zu den Potentialflächen gezählt werden.
 

Bereits im Jahr 2009/10 hat die Stadt Dachau erstmals in Zusammenarbeit mit dem Büro Baader Konzept eine umfassende Erhebung der Innenentwicklungspotentiale im bebauten Stadtgebiet durchgeführt. Die Daten des Flächenmanagements wurden 2015 und zuletzt 2019 erneut überarbeitet, sie werden fortlaufend vierteljährlich aktualisiert. Die erhobenen Potentialflächen können als Grundlage für zukünftige kommunale Planungen genutzt werden, um für neue Projekte möglichst wenig zusätzliche Flächen außerhalb des bereits bebauten Stadtgebietes als neue Siedlungs-/Bauflächen auszuweisen. Auf diese Weise soll der Flächenverbrauch so gering wie möglich gehalten werden. Die Fokussierung auf die Innenentwicklung hat den Vorteil, dass (hohe / aufwendige) Investitionen für die Erweiterung der Erschließungs- und Versorgungsanlagen (Straßen, Kanäle, Leitungen) verringert werden. Die bestehenden Anlagen werden besser ausgenutzt und insgesamt verringern sich die Kosten für die Bürger und die Stadt.
In der Sitzung des Bau- und Planungsausschusses am 20.11.2019 wurden die aktualisierten Daten zum Flächenmanagement der Stadt Dachau vorgestellt.

Die Stadt Dachau beteiligt sich als Pilot-/Anwenderkommune an dem Forschungsprojekt „Integriertes kommunales Flächen- und Ressourcenmanagement“ (KFMplus)“ der Kooperationspartner Baader Konzept GmbH und MENA GmbH. Ziel ist die „Entwicklung eines integrierten Tools zur Erfassung, Verwaltung und Bewertung von Innenentwicklungspotenzialen unter Klima-, Umwelt- und Artenschutzaspekten sowie sozialräumlichen Aspekten der Freiraumversorgung“.

Hinweis:

Die Einbeziehung von Grundstücken in die Flächenreservenerhebung hat keine unmittelbaren rechtlichen Auswirkungen und bedeutet weder ein Recht noch eine Pflicht zu einer baulichen Nutzung. Dies ist gesondert zu beurteilen. Gegebenenfalls kann auch eine Aufstellung oder Änderung eines Bebauungsplans erforderlich sein. Unabhängig von den ermittelten Potentialen sind auch die funktionalen und gestalterischen Auswirkungen in die Entscheidungen einzubeziehen. Das Flächenmanagement bildet aber eine maßgebliche Grundlage für die Entscheidungen über die weitere bauliche Entwicklung in Dachau.

Downloads Übersichtskarten

Gesamtstädtisches Kleingartenkonzept und Kleingartenentwicklung

Das Kleingartenwesen hat in der Stadt Dachau Tradition. Anfang der 1960er Jahre wurden in Dachau die ersten Kleingärten errichtet. Seitdem ist die Nachfrage nach Kleingärten stetig gestiegen. Aufgrund ihrer städtebaulichen Eigenschaften, ökologischen Funktionen und der sozialen Integration sind Kleingartenanlagen von großer Wichtigkeit für die gesamte Stadt Dachau. 

Die Stadtverwaltung hat 2020 bis 2022 ein „Gesamtstädtisches Kleingartenkonzept“ erarbeitet, welches unter anderem Vorschläge zur Weiterentwicklung und Neuausweisung von Kleingartenanlagen beinhaltet. Ziel des Konzeptes ist es, die bestehende Nachfrage langfristig zu decken und dem zu erwartenden zukünftigen Interesse an Kleingärten gerecht zu werden. Dabei sollen die Gärten für die Freizeitgestaltung und Naherholung qualitativ hochwertig gestaltet und ein Mehrwert für Ökologie und Klima sichergestellt werden. 
Der Bau- und Planungsausschuss hat in seiner Sitzung am 15.09.2020 das Vorliegende  „Grundlagen-Konzept“ (Teil A) zur Kenntnis genommen und gebilligt. Die Verwaltung wurde mit der Ermittlung des künftigen Kleingartenbedarfs einschließlich Bedarfsprognose (Teil B – Weiterführenden Untersuchungen) beauftragt. Flächenvorschläge für eine mögliche Neuausweisung als Kleingartenanlage konnten bei der Abteilung Stadtplanung eingebracht werden. In diesem Zeitraum vorgeschlagene Flächen wurden einer Vorprüfung unterzogen. Bei positivem Ergebnis dieser Vorprüfung erfolgte jeweils eine vertiefte Eignungsprüfung entsprechend der Prüfkriterien des „Grundlagen-Konzeptes“. 

Das Gesamtstädtische Kleingartenkonzept untergliedert sich in zwei Teile: 

Im ersten Teil (Teil A – Grundlagen-Konzept) erfolgt eine zusammenfassende Betrachtung und Analyse der bestehenden Kleingärten im Stadtgebiet Dachau. Zudem werden mögliche Flächen für die Ausweisung neuer Kleingartenanlagen erarbeitet und anhand zuvor festgelegter Kriterien auf ihre Eignung für die Neuausweisung als Kleingartenanlagen untersucht. 

In einem zweiten Teil (Teil B – Weiterführende Untersuchungen) wurde mit Hilfe einer Umfrage unter den Bürgerinnen und Bürgern der Stadt Dachau, den Kleingartenvereinen sowie den privaten Verpächtern bestehender Kleingärten die genaue Nachfrage nach Kleingärten ermittelt. 

Basierend auf den Ergebnissen des „Grundlagenkonzeptes – Teil A“ wurden 11 Standorte auf ihre Eignung als Kleingartenflächen untersucht. Bereits bestehende Anlagen wurden auf die Möglichkeit, dies Anlagen planungsrechtlich zu sichern und ggf. sinnvoll zu erweitern geprüft.
Der Bau- und Planungsausschusses hat in seiner Sitzung vom 18.01.2022 beschlossen, dass die Gebiete „Südlich Schleißheimer Straße/Östlich Theodor-Heuss-Straße“, „Moosstraße“ und „Himmelreich“ zur weiteren Planung von Bebauungsplänen und Flächennutzungsplan für die Entwicklung von Kleingärten in Frage kommen.

Diese drei Flächen werden nun in einem ersten Schritt in die Planung der Neuaufstellung des Flächennutzungsplans der Stadt Dachau integriert. Für die Eigentümer der betreffenden Flurstücke werden Informationsveranstaltungen geplant und vorbereitet.
Die potentiellen Flächen für Kleingärten sollen im Rahmen der Neuaufstellung des Flächennutzungsplans / Landschaftsplan als Flächen für „Dauerkleingärten“ planungsrechtlich gesichert werden.
Die Aufstellung eines Bebauungsplans bzw. mehrere Teilbebauungspläne zur Sicherung der Nutzung, einer funktionalen und homogenen Gestaltung, aber auch zur Sicherung von sozialen Komponenten und ökologischen Funktionen werden auf dieser Grundlage angestrebt.
Verbindliche Aussagen bezüglich neuer Kleingartenanlagen sowie der Verfahrensdauer können auf Grundlage des aktuellen Planungsstandes noch nicht getroffen werden, es wird aber sicherlich noch einige Jahre dauern.

Hinweis: Die Stadt Dachau selbst verpachtet keine Kleingärten. Auch gibt es keine Vormerkliste für Kleingärten. Bürger, die einen Kleingarten pachten möchten, wenden sich bitte direkt an die Kleingartenvereine. 

In einem zweiten Teil (Teil B – Weiterführende Untersuchungen) wurde nun mit Hilfe einer Umfrage unter den Bürgerinnen und Bürgern der Stadt Dachau, den Kleingartenvereinen sowie den privaten Verpächtern bestehender Kleingärten die genaue Nachfrage nach Kleingärten ermittelt. 

Basierend auf den Ergebnissen des „Grundlagenkonzeptes – Teil A“ wurden 11 Standorte auf ihre Eignung als Kleingartenflächen untersucht. Bereits bestehende Anlagen wurden auf die Möglichkeit, dies Anlagen planungsrechtlich zu sichern und ggf. sinnvoll zu erweitern geprüft.

Der Bau- und Planungsausschusses hat in seiner Sitzung vom 18.01.2022 beschlossen, dass die Gebiete „Südlich Schleißheimer Straße/Östlich Theodor-Heuss-Straße“, „Moosstraße“ und „Himmelreich“ zur weiteren Planung von Bebauungsplänen und Flächennutzungsplan für die Entwicklung von Kleingärten in Frage kommen.

Die potentiellen Flächen für Kleingärten sollen im Rahmen der Neuaufstellung des Flächennutzungsplans / Landschaftsplan als Flächen für „Dauerkleingärten“ planungsrechtlich gesichert werden.
Die Aufstellung eines Bebauungsplans bzw. mehrere Teilbebauungspläne zur Sicherung der Nutzung, einer funktionalen und homogenen Gestaltung, aber auch zur Sicherung von sozialen Komponenten und ökologischen Funktionen werden auf dieser Grundlage angestrebt.
Verbindliche Aussagen bezüglich neuer Kleingartenanlagen sowie der Verfahrensdauer können auf Grundlage des aktuellen Planungsstandes noch nicht getroffen werden, es wird aber sicherlich noch einige Jahre dauern.

Hinweis: Die Stadt Dachau selbst verpachtet keine Kleingärten. Auch gibt es keine Vormerkliste für Kleingärten. Bürger, die einen Kleingarten pachten möchten, wenden sich bitte direkt an die Kleingartenvereine.

Planungsverlauf

14.03.2023: Der städtebauliche Entwurf „Bahnhof und Bahnhofsumfeld“ wurde im Bau- und Planungsausschuss (BPA) vorgestellt und einstimmig beschlossen: Der vorgelegte und detailliert ausgearbeitete städtebauliche Entwurf dient jetzt als Grundlage für die geplanten Bauleitplanverfahren (Aufstellung eines Bebauungsplans und die Teiländerung des Flächennutzungsplans).
Präsentation Städtebaulicher Entwurf vom 14.03.2023 

15.02.2022: Vorstellung der Dokumentation aus der Online-Bürgerbeteiligung im BPA. Auftrag des BPA das städtebauliche Konzept „Bahnhof und Bahnhofsumfeld Dachau“ die Teilbereiche „Bahnhofsvorplatz und Bahnhof“ sowie den zukünftigen Bereich des Zentralen Omnibusbahnhofs (ZOB) weiter auszuarbeiten und auf ihre Funktionalität zu prüfen (2. Bearbeitungsphase)

13.11.2021: 2. Online-Bürgerbeteiligung durchgeführt 

26.10.2021: Der BPA beschließt das überarbeitete städtebauliche Wettbewerbskonzept zur Umgestaltung des Bahnhofs und Bahnhofsumfeld Dachau (1. Überarbeitungsphase). 

12.04.2021: öffentliche Videokonferenz zum Wettbewerbsergebnis 

17.03.2021: Beschluss, dass der 1. Wettbewerbspreis als Grundlage für die weiteren Planungen dient; zudem Beschluss von Überarbeitungshinweisen durch den BPA.

30.11.2020 Preisgericht 

14.07.2020 Beschluss Auslobung städtebaulichen Wettbewerb durch den BPA

21.01.2020 Billigung der städtebaulichen und eisenbahnfachlichen Eckpunkte zur Durchführung eines städtebaulichen Wettbewerbs, Abschluss einer Rahmenvereinbarung mit der Deutschen Bahn AG mit dieser Grundlage. 

 

 

Rückblick Planungsprozess:

Online-Bürgerbeteiligung am 13.11.2021

Am 13.11.2021 fand die Online-Bürgerbeteiligung zur Umgestaltung des Bahnhofs und Bahnhofsumfeld Dachau statt.
Hierbei konnten sich die Bürgerinnen und Bürger aktiv zum überarbeiteten städtebaulichen Entwurf zur Umgestaltung des Dachauer Bahnhofs einbringen. Neben kleineren interaktiven Umfragen wurde primär die aktuelle Planung durch das Planungsbüro ASTOC vorgestellt und im weiteren Verlauf konnte in 2 Forenräumen zu den Themen „Frühlingsstraße, ZOB“ sowie „Bahnhofsplatz, Bahnhofsvorplatz“ mit den Fachleuten diskutiert werden.
Die Präsentation sowie die Folien zu den Umfragen der beiden Forenräume finden sie hier.

Eine Dokumentation der gesamten Online-Bürgerbeteiligung inklusive aller gestellten Fragen & Antworten können Sie nach der Sitzung des Bau- und Planungsausschusses am 15.02.2022 hier abrufen.

Ideenwettbewerb Bahnhof Dachau Westseite

Vorstellung der Wettbewerbsarbeiten 12.04.2021

Aufgrund der Corona-Pandemie konnte die ursprünglich im Dezember vorgesehene Ausstellung der eingereichten Wettbewerbsarbeiten leider nicht stattfinden. Da die aktuelle Entwicklung absehbar keine Präsenz-Veranstaltungen mit Bürgerbeteiligung zulässt, sind zunächst alle 13 Wettbewerbsarbeiten auf dieser Seite eingestellt und können einzeln aufgerufen werden.

Am 12. April 2021 wurde abends eine öffentliche Online-Veranstaltung zur Vorstellung der Wettbewerbsarbeiten bzw. der Ergebnisse des städtebaulichen Ideenwettbewerbs und zur Information der Bürgerinnen und Bürger über das weitere Vorgehen durchgeführt.

Der Juryvorsitzende Uli Hellweg erläuterte die Ziele des Wettbewerbs und die Vorgehensweise des Preisgerichts. Die 13 Wettbewerbsarbeiten wurden durch Jurymitglieder vorgestellt und erläutert. Viele der im Chat gestellten Fragen konnten am 12.04.2021 beantwortet werden.
Zudem finden Sie eine thematisch gebündelte Dokumentation aller gestellten Fragen & Antworten in dem darunter stehenden Link.

Die Online-Veranstaltung wurde aufgezeichnet und kann in dem darunter stehenden Link angesehen werden. 

Ideenwettbewerb „Umgestaltung Bahnhof Dachau Westseite“

 

Der Bahnhof in Dachau ist der wichtigste Umsteigeplatz für die Nutzer öffentlicher Verkehrsmittel in Dachau, da hier der Zentrale Omnibusbahnhof (ZOB) mit Stadt- und Regionalbussen und der Bahnhof mit S-Bahn-Station gebündelt sind. Zugleich ist der Bahnhof das Eingangstor zur Stadt für Touristen und Besucher, die mit öffentlichen Verkehrsmitteln anreisen. Damit übernimmt das Umfeld des Hauptbahnhofes verkehrliche und repräsentative Aufgaben. Die Aufenthaltsqualität für die Menschen, die täglich oder einmalig den Dachauer Bahnhof nutzen, spielt eine große Rolle.

Der Bahnhof und seine Umgebung werden in ihrer heutigen Ausprägung als zentrale Mobilitätsdrehscheibe und attraktiven Ankunftsort in der Stadt nicht gerecht. Deshalb hat die Stadt Dachau gemeinsam mit der Deutschen Bahn AG einen städtebaulichen Ideenwettbewerb im Jahr 2020 zur Umgestaltung des Bahnhofumfeldes ausgelobt, um hochwertige Ideen für die zukünftige Entwicklung des Geländes zu finden. Das Ziel des Wettbewerbs ist ein umsetzbarer Entwurf, der zur Grundlage der weiteren Bauleitplanung gemacht werden kann. Die Planungsziele der Stadt, der Deutschen Bahn AG sowie die durch die Verwaltung geprüften Empfehlungen der Bürgerschaft aus der Bürgerbeteiligung im Sommer 2017 sind in einer gemeinsamen Rahmenvereinbarung formuliert. Der entsprechende Beschluss wurde am 21.01.2020 im Bau- und Planungsausschuss gefasst.

Die Rahmenvereinbarung wurde am 23.06.2020 von Oberbürgermeister Florian Hartmann und Vertretern der DB Station & Service AG und der DB Netz AG unterzeichnet. Die Auslobung des städtebaulichen Ideenwettbewerbs wurde am 31.07.2020 veröffentlicht. Die Sitzung des Preisgerichts fand am 30.November 2020 statt. 

Insgesamt 13 Arbeitsgemeinschaften aus Architekten, Stadtplanern, Landschaftsarchitekten und Verkehrsplanern hatten fristgerecht ihre Wettbewerbsbeiträge zum städtebaulichen Ideenwettbewerb „Bahnhof und Bahnhofsumfeld Dachau“ eingereicht. Am 30.11.2020 bewertete eine von der Stadt Dachau und der Deutschen Bahn aus Fach- und Sachpreisrichtern besetzte Jury die Arbeiten. Den 1. Preis erhielt dabei die Arbeitsgemeinschaft ASTOC Architects and Planners aus Köln, Landschaftsarchitekten lohrer.hochrein aus München und Verkehrsplaner Obermeyer Infrastuktur aus München.

Von Links: Oberbürgermeister Florian Hartmann, Uli Hellweg Vorsitzender der Preisgerichtssitzung, Mareike Schoppe Vertreterin der Deutschen Bahn

Modellfoto 1. Preis

Abgeschlossene formelle Bauleitplanungen

Folgend finden Sie alle abgeschlossenen Planungen.

 

Ein Bebauungsplan setzt für einen räumlich genau begrenzten Teilbereich des Stadtgebiets rechtsverbindlich fest, wie die einzelnen Grundstücke genutzt und bebaut werden dürfen. Der unten zum Download bereit gestellten Übersicht der Bebauungspläne können Sie entnehmen, wo im Stadtgebiet rechtsverbindliche Bebauungspläne vorliegen. 

Der Bebauungsplan besteht aus einer Planunterlage, in der durch Zeichnung und Text festgesetzt wird, welche Nutzung zulässig ist. Dazu gehören insbesondere die Art und das Maß der baulichen Nutzung, die Bauweise, die überbaubaren und nicht überbaubaren Grundstücksflächen, die Verkehrsflächen, Grünflächen und mehr. 

Aus dem Bebauungsplan können Sie daher beispielweise ablesen, welche Nutzungsarten, wie viele Geschosse und welche Bebauungsdichten für die einzelnen Grundstücke festgesetzt sind. 

Der Bebauungsplan muss aus dem Flächennutzungsplan entwickelt werden. Er wird vom Stadtrat als Satzung beschlossen. 

Jedem Bebauungsplan ist eine Begründung beigefügt, in der die Ziele, Zwecke und die wesentlichen Auswirkungen des Bebauungsplanes dargelegt sind. 

Alle Originale der rechtsverbindlichen Bebauungspläne können Sie in der Abteilung Stadtplanung einsehen. Unsere Mitarbeiter stehen für Auskünfte über deren Inhalt während der Öffnungszeiten des Rathauses und nach Vereinbarung zur Verfügung.

Der Flächennutzungsplan stellt die beabsichtigte städtebauliche Entwicklung der gesamten Stadt dar. Aus dem Flächennutzungsplan kann abgelesen werden, wo Wohnbauflächen, Gewerbeflächen, Flächen für den Gemeinbedarf (z.B. für Schulen und Kindergärten), Grünflächen, Flächen für die Landwirtschaft, Wald, Wasserflächen, Verkehrsflächen sowie Versorgungsflächen und sonstige Nutzungen geplant sind.

Die Flächennutzungsplanung ist langfristig angelegt. Der Flächennutzungsplan wurde im Jahre 1989 von der Regierung von Oberbayern genehmigt. Seitdem wurden mehrere Teiländerungen durchgeführt, die ebenfalls die Zustimmung der Regierung von Oberbayern benötigten.
Der Flächennutzungsplan ist verbindlich für die Behörden, hat aber keine unmittelbare Rechtswirkung gegenüber dem Bürger.

Der aktuelle Stand des Flächennutzungsplans wird mithilfe des Geographischen Informationssystems in der Stadtverwaltung vorgehalten und digital fortgeschrieben.

Der zugehörige Erläuterungsbericht gibt in Textform Auskunft über die Darstellungen und begründet die Planzeichnung. Die Unterlagen können Sie im Sachgebiet Stadtplanung einsehen. Unsere Mitarbeiter stehen für Auskünfte über den Inhalt während der Öffnungszeiten des Rathauses oder nach Vereinbarung zur Verfügung.

Der Stadtrat hat am 10.12.2019 den Beschluss gefasst, dass auf Grundlage der Ziele des Räumliches Leitbildes Dachau die Neuaufstellung des Flächennutzungsplans durchgeführt werden soll. Die Einleitung der Neuaufstellung des Flächennutzungsplans mit integriertem Landschaftsplan wurde vom Stadtrat in seiner Sitzung am 05.10.2021 beschlossen. Die Bekanntmachung gemäß § 3 Abs. 1 S. 2 BauGB erfolgte am 21.12.2021.

Seither wurde die Planzeichnung zum Flächennutzungsplan mit integriertem Landschaftsplan fachlich durchgearbeitet und verwaltungsintern innerhalb des Stadtbauamtes, sowie mit den Stadträten in einer Stadtratsklausur und zwei Lenkungsgruppensitzungen abgestimmt.
Bis Sommer 2023 wurde eine „xplanungs“-konforme Planzeichnung erstellt. Diese wurde im Stadtrat am 14.11.2023 insoweit gebilligt, dass auf der Grundlage dieser Planzeichnung der Vorentwurf des Flächennutzungsplans mit integriertem Landschaftsplan ausgearbeitet werden soll.

Die rechtskräftigen Flächennutzungsplanänderungen in dieser Übersicht sind in der Download-Fassung des Flächennutzungsplanes bereits eingearbeitet. 

Das Sportgelände des ASV-Dachau ist für den Platzbedarf des Vereins nicht mehr ausreichend und entspricht nicht mehr den heutigen Anforderungen an qualifizierte Sportstätten. Bei der Umstrukturierung des ASV-Geländes soll die Eissportanlage an den südlichen Rand des ASV-Geländes verlagert werden. Durch diese Verlagerung kann auf der frei werdenden Fläche der Ersatzbau der Georg-Scherer-Halle errichtet werden.
Zu den Umstrukturierungen sind außerdem auch die Umgestaltung der Außenanlagen und den bestehenden Stellplatzflächen sowie die Schaffung eines neuen Parkhauses geplant. Die Nebenanlagen, wie Garagen / Lager für die Außenanlagen- und Sportplatzflächenpflege sowie das Funktionsgebäude für den Tennisverein sollen ebenfalls neu strukturiert werden. Die Planung verfolgt das Ziel auch für die Zukunft einen attraktiven Aufenthaltsort mit hoher Qualität von Sportanlagen für die einheimische Bevölkerung anbieten zu können sowie den Bedarf und Zugang der Bevölkerung zu Sportanlagen zu decken bzw. zu erweitern.
Im Plangebiet sollen daher die bauplanungsrechtlichen Voraussetzungen geschaffen werden, die bestehenden Sportflächen neu zu strukturieren und zu erweitern.
Im Dezember 2023 wurde der Realisierungswettbewerb „Ersatzneubau Georg-Scherer-Halle des ASV Dachau e.V. samt Parkhaus durchgeführt. Mit dieser Durchführung des Wettbewerbs hat die Stadt Dachau von einem Preisgericht prämierte Wettbewerbsarbeiten bekommen, die zeigen wie der Neubau Georg-Scherer-Halle aussehen könnte. Mit den Preisträgern des Realisierungswettbewerbs werden im Jahr 2024 Verhandlungsgespräche zur Vergabe der Planungsleistungen geführt.
Das für die Entwicklung des ASV-Sportgeländes notwendige Bebauungsplanverfahren wird voraussichtlich im Jahr 2024 abgeschlossen werden können.
Die parallel erforderliche Teiländerung des Flächennutzungsplans 04819 „Sportpark an der Gröbenrieder Straße“ wurde mit der Bekanntmachung am 06.12.2023 wirksam.

Sonstige abgeschlossene informelle Planungen

Folgend finden Sie alle sonstigen abgeschlossenen Planungen.

Ziele & Inhalte

Der kommunale Wärmeplan (kWP) beinhaltet eine Strategie zur Umsetzung der Wärmewende und dem Erreichen von Klimaneutralität. Er zeigt neue Wege auf, wie die überwiegend auf fossilen Energieträgern basierende Wärmeversorgung für Gebäude auf erneuerbare Energien umgestellt werden kann. Mit dem Wärmeplan werden vor Ort verfügbare und wirtschaftliche Alternativen für eine klimaneutrale Wärmeversorgung identifiziert.
Der Wärmeplan hat keine rechtliche Außenwirkung und begründet gegenüber den Projektträgern keine einklagbaren Rechte oder Pflichten.
Die Projektleitung liegt bei der Abteilung Stadtplanung in Zusammenarbeit mit der Stabsstelle Klimaschutz und den Stadtwerken Dachau.

Der kommunale Wärmeplan Dachau wurde am vom Stadtrat 08.04.2025 beschlossen. Den Abschlussbericht finden Sie hier.
Weitere Informationen zum kommunalen Wärmeplan erhalten Sie unter Klimaschutz.

Das Integrierte städtebauliche Entwicklungskonzept (ISEK), das erstmals für Dachau erstellt wurde, ist vom Stadtrat am 30.01.2024 einstimmig beschlossen worden. 

Hier finden Sie die beschlossene ISEK Planung:
– Bericht Rahmenplan ISEK
– Kartenwerk, Analyse- und Maßnahmenpläne 
– Protokolle Bürger- und Expertenbeteiligung ISEK

Im Rahmen der ISEK Planungen wurden 2 große Sanierungsgebiete „Altstadt und Umgebung“ sowie „Unterer Markt“ erarbeitet und vom Stadtrat am 02.07.2024 beschlossen. Die jeweiligen Sanierungssatzungen erhalten Sie hier.

Maßnahmenübersichtsplan

Was ist ein ISEK?

Ein ISEK ist ein fachliches Planungskonzept, welches als Leitfaden für die Stadtentwicklung für die nächsten zehn bis fünfzehn Jahre dient. Das beauftragte ISEK soll die zahlreichen vorhandenen Untersuchungen und Planungskonzeptionen zusammenführen, aktualisieren und bestehende Stärken und Schwächen identifizieren. Wesentliche Grundlage für die Erarbeitung des Entwicklungskonzepts bilden die aus dem Beteiligungsprozess des Räumlichen Leitbildes vorliegenden Ideen und Anregungen. Diese werden im Dialog mit Politik, Fachakteuren und Bevölkerung in konkrete Maßnahmen überführt.

Die Webseite die den Entstehungsprozess des Räumlichen Leitbildes dokumentiert ist noch immer aktiv: www.dachaudenktweiter.de
Hier können Sie die Inhalte aus den Bürgerbeteiligungen zum Räumlichen Leitbild Dachau einsehen.

Das ISEK ist die Voraussetzung für eine geförderte Maßnahmendurchführung mit städtebaulichen Fördermitteln. Das ISEK wird gefördert durch den Bund und den Freistaat Bayern im Rahmen der Städtebauförderung. So stellen Bund und Länder seit 1971 in den Programmen der Städtebauförderung Finanzhilfen für Investitionen in die Entwicklung und Erneuerung der Städte und Gemeinden bereit: WWW.STAEDTEBAUFOERDERUNG.INFO  

Zeitlicher Ablauf

Die Erarbeitung des Integrierten Städtebaulichen Entwicklungskonzeptes dauerte ca. 2,5 Jahre. Der nachfolgende Zeitplan gibt einen groben Überblick über den Projektverlauf und über den strategischen Aufbau des Vorgehens. Die Planung wurde inhaltlich bis Ende 2023 fertig gestellt für die finale Beschlussfassung im Stadtrat am 30.01.2024.

Bürger- und Expertenbeteiligung

Im Vorfeld zum integrierten städtebaulichen Entwicklungskonzept (ISEK) sind bereits umfangreiche Beteiligungen der Dachauer Bürgerinnen und Bürger im Rahmen der Entwicklung des Räumlichen Leitbildes Dachau erfolgt. Auch im Rahmen des ISEK-Prozesses kamen verschiedene digitale und analoge Beteiligungsschritte zum Einsatz.

Ergebnis der Beteiligungshomepage, Stadtteilspaziergänge und Planungsworkshops:

Hier erhalten Sie einen Überblick zur Auswertung des Ideenwettbewerbs.

„Mit Beschluss des Bau- und Planungsausschusses vom 20.11.2019“ wurde ein gesamtstädtisches Nahversorgungskonzept als Grundlage für weitere Entscheidungen zur Einzelhandelsnutzung im MD-Gelände ausgeschrieben und an die GMA, Gesellschaft für Markt- und Absatzforschung mbH, Ludwigsburg/München, in Auftrag gegeben.

Das vorliegende Nahversorgungskonzept der GMA vom 08.07.2020 wurde mit der Stadtkämmerei und dem Stadtbauamt abgestimmt und in der Sitzung des Bau- und Planungsausschusses am 28.10.2020 öffentlich beraten und einstimmig beschlossen.

Die im Konzept aufgeführten strategischen Zielsetzungen und Handlungsempfehlungen zur Weiterentwicklung der Nahversorgung in Dachau sowie die standort- und lagebezogenen Entwicklungsziele und Handlungsempfehlungen wurden gebilligt. Das Nahversorgungskonzept wird nun als städtebauliches Entwicklungskonzept bei der Aufstellung von Bauleitplänen berücksichtigt und der künftigen Entwicklung der nahversorgungsrelevanten Einzelhandelsstruktur zu Grunde gelegt.“

Fortschreibung Bevölkerungsprognose 2020 und Evaluierung der Prognose

Die Stadt Dachau hat in Zusammenarbeit mit dem Planungsverband Äußerer Wirtschaftsraum München (PV) und dem Institut für Sozialplanung, Jugend- und Altenhilfe (SAGS) die Prognose über die Bevölkerungsentwicklung Dachaus im Jahr 2020 zum zweiten Mal fortgeschrieben. Die Ergebnisse der zweiten Fortschreibung des Demografieberichts wurden nun, unter Berücksichtigung der derzeitigen Covid-19-Pandemie kritisch hinterfragt und evaluiert. 
Erstmalig wurde 2010 eine Bevölkerungsprognose aufgestellt, die den Zeitraum bis zum Jahr 2025 beleuchtet. Die Fortschreibung 2015 umfasst die Jahre bis 2032. Im Jahr 2020 wurde die Bevölkerungsprognose für den Prognosezeitraum bis 2037 fortgeschrieben.

  • Im ersten Teil der Prognose wird die allgemeine Entwicklung der Bevölkerung im Zusammenhang mit den bestehenden und geplanten Bauflächen untersucht. 
    Dabei werden die Flächenressourcen im Bestand (Baulücken, geringfügig bebaute Grundstücke) und das Bauflächenpotential gemäß Bauleitplanung (Flächennutzungsplan und Bebauungspläne) als Grundlage herangezogen. Zusätzlich wird 2020 erstmalig der Generationswechsel bei der Prognose mit einbezogen. Im Ergebnis werden die potentiellen Wohnungsfertigstellungen bis 2037 und der wohnbaubedingte Zuzug für diesen Zeitraum ermittelt.

Der zweite Teil der Prognose dokumentiert ausführlich die Entwicklung der Einwohnerzahlen in Dachau sowie in den fünf Teilräume und vergleicht diese auch mit Nachbarstädten im Großraum München. Zuletzt werden die Auswirkungen auf den Bedarf an Kindertagesbetreuungseinrichtungen untersucht. Dabei geht es sowohl um Krippen, Kindergärten und Horte als auch um Grund- und Mittelschulen.

Die Bevölkerungsprognose zeigt die Entwicklung der unterschiedlichen Altersgruppen in den verschiedenen Stadtteilen sowie die sich aus diesen Entwicklungen ergebenden Auswirkungen auf die Anforderungen an die soziale Infrastruktur. Damit ist die Bevölkerungsprognose eine wichtige Grundlage für zur Diskussion der künftigen Stadt- und Siedlungsentwicklung. 
Im Rahmen der Evaluierung der Bevölkerungsprognose 2015-2019 wird die Fortschreibung des Demografieberichts aus dem Jahr 2015 überprüft. Die Ergebnisse der verschiedenen in der Prognose 2015 berechneten Szenarien werden mit der tatsächlichen Bevölkerungs-entwicklung der Stadt Dachau, sowohl gesamtstädtisch als auch in den Teilräumen, verglichen. Des Weiteren werden die 2015 getroffenen Annahmen zur Siedlungsentwicklung hinterfragt. 
Basierend auf der Evaluierung der Demografieberichts 2015 erfolgte eine Neubewertung der im Rahmen der Fortschreibung des Demografieberichts 2019/20 getroffenen Annahmen. 
Für die Fortschreibung des Demografieberichts 2019/20 wurden die Annahmen zur Nachbelegung infolge des Generationswechsels sowie zur Nachverdichtung aktualisiert und die Annahmen für die Aufsiedlung der beiden Vorhaben „MD-Gelände“ und „Augustenfeld“ angepasst. 
Eine Überarbeitung des „Demografiebericht Fortschreibung 2020“ erfolgt zurzeit.
Die Auswirkungen auf den Bedarf an Kinderbetreuungseinrichtungen werden derzeit separat erarbeitet. 
Der Demografiebericht 2020 sowie die Ergebnisse der Evaluierung stehen hier als pdf-Dateien zum Herunterladen bereit. 

Eine Aktualisierung der Bevölkerungsprognose (Demografiebericht) ist im Jahr 2025/2026 geplant. 

Prognose zum Bedarf und Bestand an Betreuung(-splätzen) in den Einrichtungen der Kindertagesbetreuung und Schülerprognose 

Separat zur Fortschreibung Bevölkerungsprognose 2020 und Evaluierung der Prognose wird der Bedarf für Kinderbetreuungseinrichtungen sowie eine Schülerprognose erarbeitet. In den vergangenen Jahren erfolgte in der Stadt Dachau ein stetiger Ausbau des Kinderbetreuungsplatzangebotes. Trotz der Ausbaumaßnahen besteht weiterhin ein hoher Bedarf an zusätzlichen Betreuungsplätzen. Dieser Bedarf soll mit Hilfe der Prognose zum Kindertagesbetreuungsbedarf und der Schülerprognose bis zum Jahr 2037 genau(er) überprüft / prognostiziert werden. Für die Abschätzung des Bedarfs an Kindertagesbetreuung in Krippen, Kindergärten und Horten bzw. Ganztagesklassen an Schulen wurde eine Befragung der Kinderbetreuungseinrichtungen durchgeführt. Ebenso wurden Grund- und Mittelschulen befragt. Zusätzlich werden Sonderauswertungen des Bayerischen Landesamtes für Statistik zu den Kindertageseinrichtungen für die Stadt Dachau sowie die „5-Jahres-Statistiken“ (Schülerprognosen) der Grund- und Mittelschulen in die Prognose mit einbezogen. 
​​​​​​​

Die Bevölkerungsprognose (Demografiebericht) wird derzeit aktualisiert.

 

  1. Die Grünräume des Dachauer Hügellandes und des Dachauer Mooses umschließen Dachau als kompakten eigenständigen Siedlungskörper, abgegrenzt vom Umland. Die prägnante Hangkante und die Amper formen den Stadtraum.
  2. Die Altstadt oberhalb der Hankante und der untere Markt mit dem Bahnhof bilden kompakte urbane Zentren mit hoher Aufenthaltsqualität.
  3. Die Umgestaltung der historischen Verkehrs- und Entwicklungsachsen ist Voraussetzung für die Mobilität von Morgen.


Räumliche Leitbilder setzen sich verstärkt mit der Erhaltung und Fortentwicklung städtischer Eigenart auseinander. Zum einen zeigen räumliche Leitbilder Entwicklungschancen, aber auch Risiken und Räume, die in einem besonderen Maß der kommunalen Zuwendung und Sorgfalt bedürfen. Das Räumliche Leitbild ist hierbei als verallgemeinertes Planungswerkzeug zu verstehen, welches die anstehende Flächennutzungsplanung der Stadt um strategische Aussagen ergänzt. 

Weitere Informationen finden Sie unter „www.dachaudenktweiter.de„.

 

Abschlusspräsentation Entwicklung Räumliches Leitbild Dachau denkt weiter

Der Entwurf des Räumlichen Leitbildes stellt die Zusammenschau bzw. das Ergebnis aller Beteiligungen und fachlichen Bearbeitungen dar. Er ist das Ergebnis bzw. Fachgutachten der beauftragten Planer (Büro Stadtentwickler). Acht Entwicklungsziele und eine Strategiekarte Gesamtentwicklung fassen die wesentlichen Aussagen jeweils in kurzer Textform und mit Plangrafiken zusammen. Zu jedem Entwicklungsziel sind die Herausforderungen und Handlungsempfehlungen anschaulich abgeleitet im Hinblick auf die Neuaufstellung des Flächennutzungsplans. Die Leitziele aus dem alten Flächennutzungsplan von 1989 sind den neuen Leitzielen von 2019 gegenüber gestellt.

Leitbildentwurf

Der Entwurf des Räumlichen Leitbildes stellt die Zusammenschau bzw. das Ergebnis aller Beteiligungen und fachlichen Bearbeitungen dar. Er ist das Ergebnis bzw. Fachgutachten der beauftragten Planer (Büro Stadtentwickler). Acht Entwicklungsziele und eine Strategiekarte Gesamtentwicklung fassen die wesentlichen Aussagen jeweils in kurzer Textform und mit Plangrafiken zusammen. Zu jedem Entwicklungsziel sind die Herausforderungen und Handlungsempfehlungen anschaulich abgeleitet im Hinblick auf die Neuaufstellung des Flächennutzungsplans. 

Dokumentation Bürgerworkshop 27.07.2019

Der Bürgerworkshop wurde auf dem seit 2007 brachliegenden MD Papierfabrikgelände in der ehemaligen Zentralwerkstatt organisiert. Der Veranstaltungsort wurde bewusst inmitten dem wichtigsten städtischen Konversions- bzw. Planungsgebiet am Fuße der Altstadt gewählt und mit einem Graffitikunstwerk zur Stadt Dachau auf den ehemaligen Plakattafeln aufgewertet. Die rund 350 Bürgerinnen und Bürger stellten ihre Ideen auf den Plexiglasplatten, die über den vom Arbeitskreis bearbeiteten acht Profiltischen lagen, dar. Zudem wurden Bürgerideen auf drei großformatigen Plakaten des Dachauer Stadtgebiets verortet. Zwei Experten referierten zu den Themenbereichen zukünftige Arbeit/Coworking sowie soziale Teilhabe und gaben damit einen Einblick in neue Arbeits- und Lebensformen. Den Abschluss gestaltete der bereits international bekannte Dachauer Perkussionist Christian F. Benning mit einem einzigartigen Konzert, das auch Relikte aus der ehemaligen Papierfabrik in eigene Kompositionen einbezog.

Etappe 2&3, Onlineumfrage zum Räumlichen Leitbild

Ergebnisse zur Online-Bürgerbefragung zu den Themenfeldern und ihren Leitbildern.
Ziel des Leitbildprozesses sind positive Visionen und Konzepte für die Zukunft Dachaus entwerfen.

Dokumentation: Workshop 30.04.2019/22.05.2019

Im Rahmen von zwei Workshops am 30.04. und 22.05.2019 wurden mögliche Profilmerkmale der Stadt als Basis für die Leitgedanken in wechselnden Kleingruppen mit insgesamt 36 Teilnehmern erarbeitet. Die Bewertung und Diskussion erfolgte anhand der in der Analysephase (Etappe 1) herausgearbeiteten Problembeschreibungen und Lösungsbausteine sowie mit Hilfe neu eingebrachter Ideen. An acht Profiltischen wurden die Leitgedanken entwickelt und jeweils in einer erläuternden Textfassung zu folgenden Themenbereichen zusammengefasst:

  1. Flanier-Stadt
  2. Natur-Stadt
  3. Heimat-Stadt
  4. Unternehmer-Stadt
  5. Kultur-Stadt
  6. Kompakt-Stadt
  7. Quartier-Stadt
  8. Teilhabe-Stadt

Drehbuch: Grundlagen

Das räumliche Leitbild soll zum einen die Grundlage für die Aktualisierung der Flächennutzungsplanung bilden, andererseits auch einen grundsätzlichen städtebaulichen Entwicklungsrahmen für die Große Kreisstadt abbilden.

Aufnahme in die Städtebauförderung

Im Jahr 2008, am 17. Juli, wurde Dachau-Ost erstmalig durch die Regierung von Oberbayern in das Bund-Länder- Programm „Soziale Stadt“ der Städtebauförderung aufgenommen.
In der Städtebauförderung stellen der Bund und die Länder Finanzmittel zur Förderung einer positiven Stadtentwicklung zur Verfügung. In verschiedenen Förderprogrammen werden zum Beispiel die Behebung struktureller Defizite oder die Umwandlung brachliegender Stadtareale gefördert. Das Besondere am Programm „Soziale Stadt“ ist, dass neben städtebaulichen und baulichen Maßnahmen auch soziale und kulturelle Projekte zur Verbesserung der Lebenssituation der Quartiersbewohner über einen Quartiersfonds unterstützt werden.

Bei der Rahmenplanung Augustenfeld Nord handelt es sich um eine informelle Planung, die mit intensiver Bürgerbeteiligung erarbeitet und 2017 fertiggestellt und vom Stadtrat als Grundlage für die weitere Siedlungsentwicklung in Augustenfeld beschlossen wurde. Der Stadtrat hat entschieden, dass nur das Gelände des TSV 1865 weiterentwickelt wird (siehe Bebauungsplan BP 183/21 „Augustenfeld Zentrum ( Teil 1) Ehemaliges Sportgelände“). 

Projekt Dorf und Metropole Dachau

Informationen über das Projekt Dorf und Metropole Dachau finden Sie auf der Internetseite des Landratsamtes Dachau.

Zur Webseite des Landratsamtes Dachau

Nachfolgelastenuntersuchung

Die Stadt Dachau hat im Jahr 2008 im Zuge der damaligen Planungen für ein neues Wohngebiet im Bereich Unteraugustenfeld durch den Planungsverband München eine Folgelastenuntersuchung erarbeiten lassen. In diesem Gutachten wurden die finanziellen Aspekte der Siedlungsentwicklung bei Einnahmen wie Ausgaben untersucht. Mit dieser Untersuchung war die Stadt Dachau bundesweit eine der Pilotstädte.

Von dem Wohngebiet Augustenfeld wurde zwar im Jahr 2010 wieder Abstand genommen, die grundsätzlichen Ergebnisse über die finanziellen Auswirkungen sind aber wesentliche Aspekte bei den Entscheidungen über die weitere Siedlungsentwicklung.

Entsprechend ist diese Untersuchung hier als eine Grundlageninformation über die vielfältigen Aspekte und Verflechtungen der Stadtentwicklung veröffentlicht. Sie dienen damit auch der Meinungsbildung im Rahmen der Integrativen Stadtentwicklung in Dachau. 

Stadtbauamt

Abteilung 5.1 Stadtplanung